EasyManua.ls Logo

Rapid 4044 - Table 2: 4000 am Dimensions; Figure 4: 4000 am Vertical Model Dimensions

Rapid 4044
162 pages
Print Icon
To Next Page IconTo Next Page
To Next Page IconTo Next Page
To Previous Page IconTo Previous Page
To Previous Page IconTo Previous Page
Loading...
SECTION 5: SPECIFICATIONS
11 of 15 4
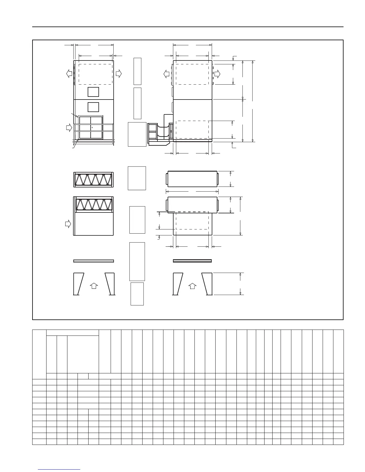
FIGURE 4: 4000 AM Vertical Model Dimensions
Table 2: 4000 AM Dimensions
Model
Air Handler
Base Frame
Formed Channel
Base Frame
Structural Angle
Filter Section Width
Filter Mixbox Length
Filter Mixbox Length
With Side Return
Discharge Length
Discharge Width
Return Air Length
Return Air Length
Return Air Width
Return Air Height
Discharge Height
Filter Length
Plenum Width
Plenum Length
Inlet Hood Length
Minimum Leg Height
Plenum Height
Width
Height
Length
ABCDE F G HH1J K L M NN1PP1QRR1STV X Y ZAABB
4024 40 40 109 - 4 - 62 62 62 4 5.5 20 29 18 27 32 22 34 4 2 3 10 30 40 60 48 36 40
4036 58 58 120 - 4 - 62 66 77 5 5.5 25 47 26 41 50 32 50 4 2 3 4 30 63 77 72 36 63
4040 63 63 130 - 4 - 81 68 77 6 6.5 33 50 30 41 55 40 53 4 2 3 4 30 63 77 84 36 63
4044 69 69 137 - 4 - 81 70 79 6 6.5 36 56 32 43 61 46 59 4 2 3 4 30 76 84 84 36 76
4049 76 76 140 - 4 - 81 72 80 6 6.5 39 63 34 44 68 53 66 4 2 3 4 30 76 84 84 36 76
4054 85 85 144 86 58 6 - 100 77 90 6 6.5 43 72 39 55 77 55 75 4 2 3 4 30 94 77 96 48 94
4060 94 94 154 90 64 6 - 100 77 85 6 6.5 48 81 38 50 86 65 84 4 2 3 4 30 94 77 96 48 94
4066 104 96 158 94 64 6 - 119 84 100 6 6.5 50 91 45 65 96 67 90 4 2 3 4 30 112 120 96 48 96
4073 112 96 163 94 69 - 3 119 84 107 6 6.5 50 99 44 72 104 64 90 4 2 3 4 30 112 120 96 48 96
4080 131 112 171 75 96 - 4 139 94 112 6 7.5 60 116 48 77 123 76 106 4 2 3 4 30 131 138 96 48 112
4089 131 112 177 81 96 - 4 139 94 112 6 7.5 60 116 48 77 123 76 106 4 2 3 4 30 131 138 96 48 112
B
F
Q
BD RD/LD
BR
CE
FJ
S
A
MK
K
J
LD
L
D
C
E
N
T
R
P
R
CE
BR
BD/UD
G
BR
V
V
H
N
T
R
P
R
OA
OA
BR
ELECTRICAL
CONNECTION
GAS
CONNECTION
UD
RD
AA
FJ
AD2
AD1
FAN SECTIONBURNER SECTION
SERVICE
PLATFORM
(OPTIONAL)
FILTER
SECTION
(OPTIONAL)
FILTER MIX BOX
(OPTIONAL)
OR
LEGS
(OPTIONAL)
RAIN SKIRT
(STANDARD FOR
OUTDOOR EQUIPMENT)
FRONT VIEW
RIGHT SIDE VIEW
AD2
AD1

Table of Contents

Related product manuals