EasyManua.ls Logo

Rapid 4044 - Figure 35: Indoor Suspension

Rapid 4044
162 pages
Print Icon
To Next Page IconTo Next Page
To Next Page IconTo Next Page
To Previous Page IconTo Previous Page
To Previous Page IconTo Previous Page
Loading...
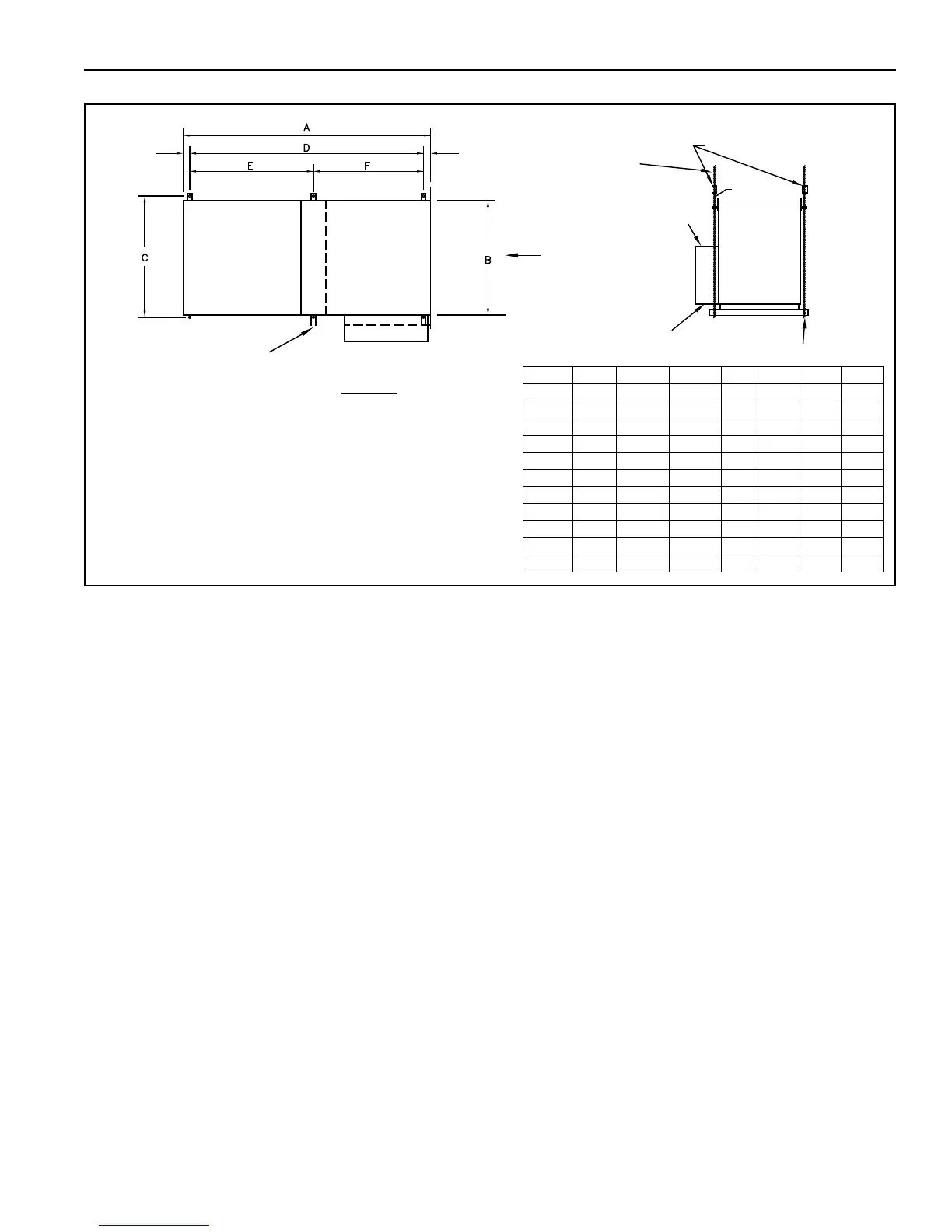
SECTION 9: INDOOR SUSPENSION MOUNTING - HORIZONTAL AIR HANDLER
47 of 154
FIGURE 35: Indoor Suspension
VIBRATION ISOLATORS
WHEN SPECIFIED
SUPPORT
RODS
AIR HANDLER
CONTROLS RIGHT
INLET END VIEW
APPROXIMATE
GAS PIPE LOCATION
CENTER SUPPORTS
ROD SIZE-
4036 – 4089 3/4" Ø
4024 5/8" Ø
INLET
G
G
CONTROLS RIGHT
BURNER
SECTION
FAN
SECTION
Field Joint
Field Joint
(4054-4073 ONLY)
(4080-4089 ONLY)
PLAN VIEW
CONTROLS RIGHT SHOWN
CENTER SUPPORTS
ON 4040 TO 4089 ONLY
NOTES:
1. CONSULT FACTORY FOR DIMENSIONS WHEN USING
A 3V4 OR 4" MANIFOLD.
2. ALL DIMENSIONS & WEIGHTS ARE SUBJECT TO CHANGE
WITHOUT NOTICE & SHOULD NOT BE USED FOR
CONSTRUCTION UNLESS CERTIFIED.
3. ACCESSORIES MAY VARY BY INDIVIDUAL ORDER. CONSULT FACTORY
FOR ADDITIONAL INFORMATION.
4. FOR NUMBER OF SUPPORT RODS CONSULT FACTORY.
Model A B C D E F G
4024 109 40 45 103 - - 3
4036 120 58 63 114 - - 3
4040 130 63 68 124 64 60 3
4044 137 69 74 131 67 64 3
4049 140 76 81 134 70 64 3
4054 144 85 90 138 80 58 3
4060 154 94 99 148 84 64 3
4066 158 104 109 152 88 64 3
4073 163 112 117 157 88 69 3
4080 162 131 136 165 75 90 3
4089 168 131 136 171 81 90 3

Table of Contents

Related product manuals