EasyManua.ls Logo

Roxell FLEX-AUGER FA 75 - POSITION OF THE DROP TUBES

Default Icon
178 pages
Print Icon
To Next Page IconTo Next Page
To Next Page IconTo Next Page
To Previous Page IconTo Previous Page
To Previous Page IconTo Previous Page
Loading...
ROXELL - 031 - 0516
FLEX-AUGER - INSTALLATION INSTRUCTIONS
III-36
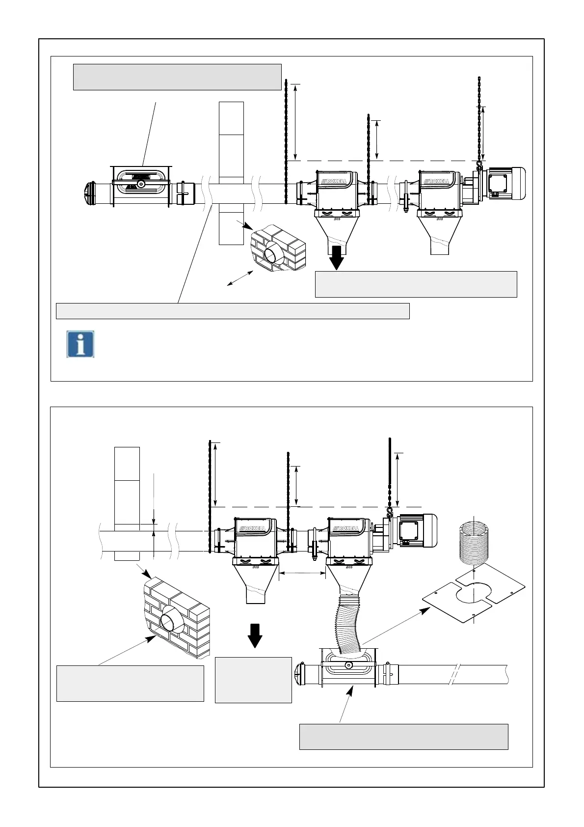
FIGURE 63.
If the suspension chain is shorter than 500mm, follow the installation instructions for
Flex-Augers longer than (>) 30m.
*Install the Flex-Auger horizontally. It must be able to move freely.
Fix the intake boot to the wall, the ceiling or
the floor, in such a way that it cannot move.
Min.500mm.
Min.500mm.
Min.500mm.
Install the automatic outlet straight down-
ward.
Ifyouinstall2Flex-Augersinseries:
See instructions page III-14
FIGURE 64.
Min.250mm
Min. 1,5mm
Install the Flex-Auger horizon-
tally.Itmustbeabletomove
freely.
Fix the intake boot to the wall, the ceiling or
the floor, in such a way that it cannot move.
Install the auto-
matic outlet
straight down-
ward.
Min.500mm.
Min.500mm.
Min.500mm.

Table of Contents

Related product manuals