EasyManua.ls Logo

Stulz EC Tower ECD 91 - 13.9 Installing the louver damper for Downflow units

Stulz EC Tower ECD 91
206 pages
Print Icon
To Next Page IconTo Next Page
To Next Page IconTo Next Page
To Previous Page IconTo Previous Page
To Previous Page IconTo Previous Page
Loading...
100 EN/01.2019/G22  © STULZ GmbH – all rights reserved
ec tower technical manual
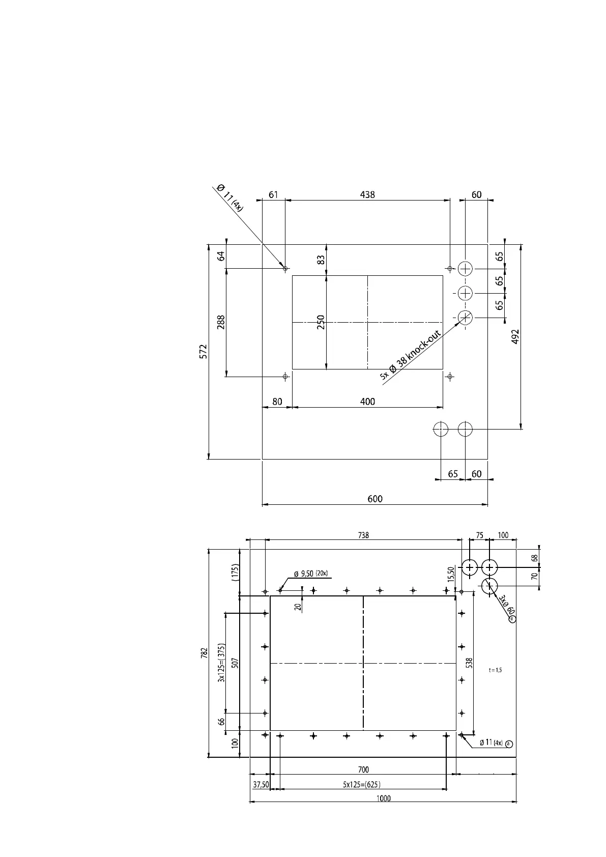
13.9Installing the louver damper for Downflow units
60
80
220
In Downflow units, the louver damper is installed on the blow-out side. This illustration shows the louver

louver damper under the Downflow unit. The adapter panel is included in the louver damper product package.
The louver damper is available for sizes 1 and 2.
View from above
Front
View from above
Front
Adapter panel for size 2:
Adapter panel for size 1:


Table of Contents

Related product manuals