EasyManua.ls Logo

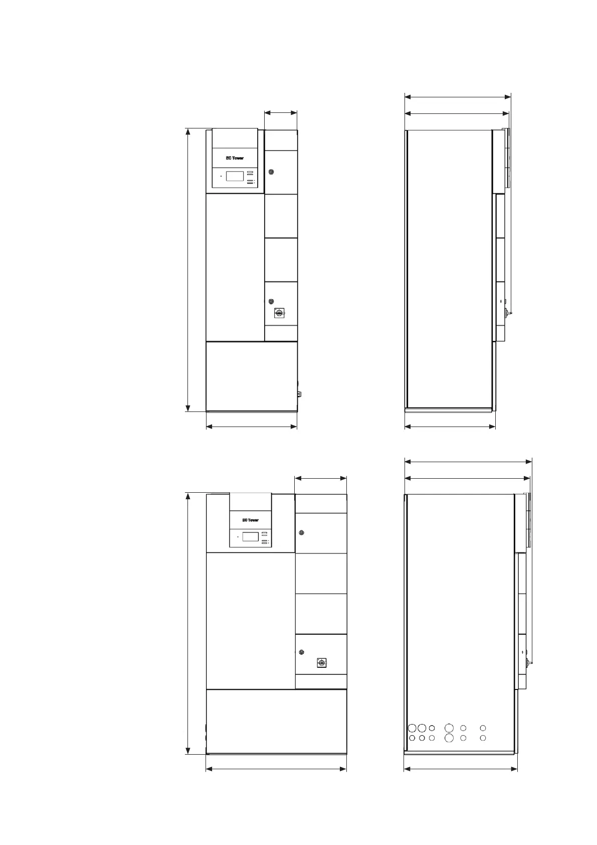
Stulz EC Tower ECD 91 - 6.4 Dimensional drawings

Stulz EC Tower ECD 91
206 pages
Print Icon
To Next Page IconTo Next Page
To Next Page IconTo Next Page
To Previous Page IconTo Previous Page
To Previous Page IconTo Previous Page
Loading...
28
220
690
900370
600600
1000
1861 1861
810
702
912
ECU/D 91
ECU/D 181
ECU/D 251
EN/01.2019/G22  © STULZ GmbH – all rights reserved
EC TOWER TECHNICAL MANUAL
6.4 Dimensional drawings
Size 1
Size 2
All dimensions in mm.

Table of Contents

Related product manuals