EasyManua.ls Logo

WEG MVW01 - Page 100

WEG MVW01
130 pages
Print Icon
To Next Page IconTo Next Page
To Next Page IconTo Next Page
To Previous Page IconTo Previous Page
To Previous Page IconTo Previous Page
Loading...
11
OPTIONAL ACCESSORIES AND BOARDS
Screw M3 x 8
Torque 1Nm
EBA board
MVC4 board
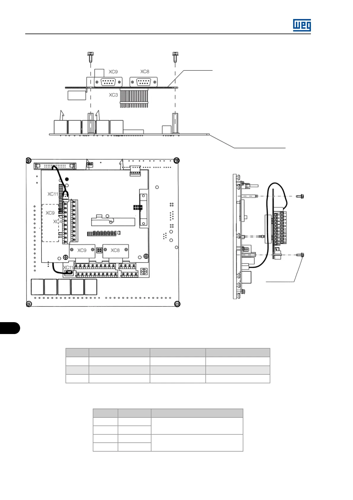
Figure 11.7: EBA board installation procedure
Table 11.7: EBA board configuration of setting elements
Switch Signal Factory Default OFF (Factory Default) ON
S2.1 Al4 - Speed Reference (0 to 10) V (0 to 20) mA or (4 to 20) mA
S3.1 RS-485 B - LINE (+) Without termination With termination (120 Ω)
S3.2 RS-485 A - LINE (-) Without termination With termination (120 Ω)
Table 11.8: Trimpot settings - EBA card
Trimpot Function OFF (Factory Default)
RA1 AO3 - Offset
P0255 = Real Speed
RA2 AO3 - Gain
RA3 AO4 - Offset
P0257 = Output Cur
RA4 AO4 - Gain
MVW01 | 11-8

Table of Contents

Related product manuals