EasyManua.ls Logo

YASKAWA SGD7W - Page 214

YASKAWA SGD7W
337 pages
Print Icon
To Next Page IconTo Next Page
To Next Page IconTo Next Page
To Previous Page IconTo Previous Page
To Previous Page IconTo Previous Page
Loading...
9.4 Serial Converter Unit
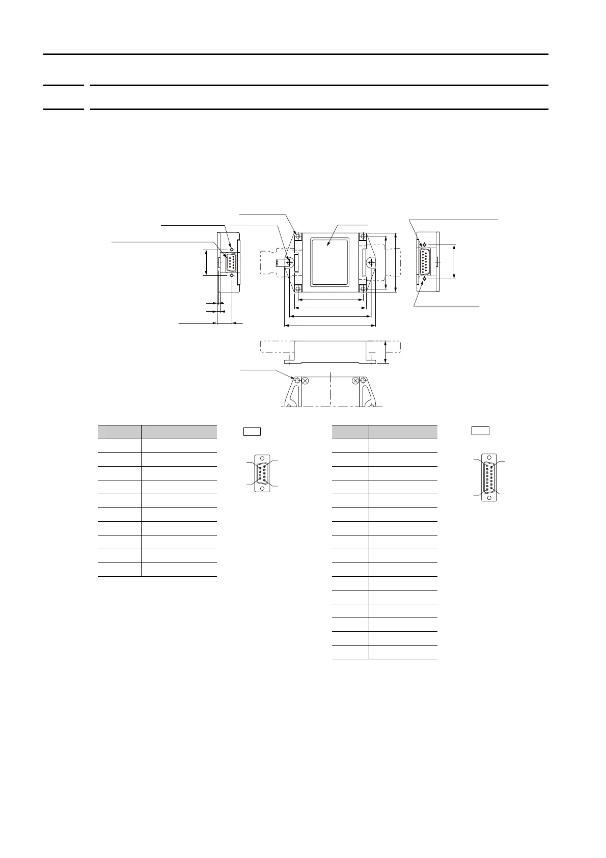
9.4.3 External Dimensions
9-32
9.4.3
External Dimensions
Serial Converter Unit without Polarity Sensor Cable
(for Linear Encoder from Dr. JOHANNES HEIDENHAIN
GmbH)
Model: JZDP-
003-

Note: 1. Do not connect the unused pins.
2. Contact Dr. JOHANNES HEIDENHAIN GmbH for details on cables (analog 1 Vp-p output, D-sub 15-pin,
male) from Dr. JOHANNES HEIDENHAIN GmbH.
82 ± 0.3
65 ± 0.3
52 ± 0.3
60
33.32 ± 0.4
72
90
1.5
3
14.35 ± 0.3
24.99 ± 0.3
10
22.5
4 × M5 × 10
Unit: mm
2 × #4-40 UNC screws
Linear Encoder-end
analog signal input connector (CN2)
Nameplate
2 × 4.2 dia. holes
4 × 4.2 dia. holes
SERVOPACK-end
serial data output connector (CN1)
2 × #4-40 UNC screws
Pin Signal
1+ 5 V
2Phase-S output
3 Not used
4Not used
50 V
6 /Phase-S output
7Not used
8Not used
9Not used
Case Shield
9
6
1
5
CN1
17-Series Connector:
17LE-13090-27-FA
from DDK Ltd.
(Socket)
SERVOPACK-end
serial data outputs
Pin Signal
1cos input (A+)
20 V
3 sin input (B+)
4+ 5 V
5Not used
6Not used
7/Ref input (R-)
8Not used
9/cos input (A-)
10 0 V sensor
11 /sin input (B-)
12 5 V sensor
13 Not used
14 Ref input (R+)
15 Not used
Case Shield
1
8
9
15
CN2
17-Series Connector:
17LE-13150-27-FA
from DDK Ltd.
(Socket)
Linear Encoder-end
analog signal inputs

Table of Contents

Related product manuals