EasyManua.ls Logo

YASKAWA SGD7W - Page 305

YASKAWA SGD7W
337 pages
Print Icon
To Next Page IconTo Next Page
To Next Page IconTo Next Page
To Previous Page IconTo Previous Page
To Previous Page IconTo Previous Page
Loading...
12.8 Regenerative Resistor
12.8.5 Specifications and Dimensions of External Regenerative Resistors
12-36
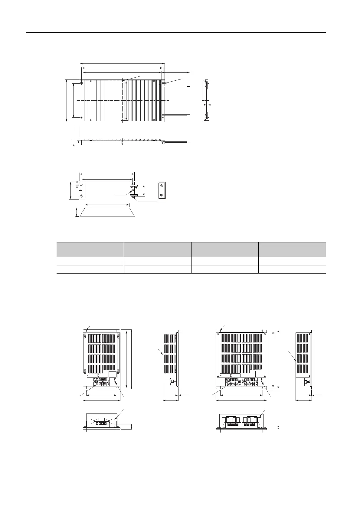
Model: RH450FY
Model: RH500
Regenerative Resistor Units
Note: If you use only the above Regenerative Resistor Units, you do not need to change the setting of Pn600
(Regenerative Resistor Capacity) or Pn603 (Regenerative Resistance).
External Dimensions
SERVOPACK Model:
SGD7S-
Regenerative Resistor
Unit Model
Specification Allowable Power Loss
470A JUSP-RA04-E 6.25
Ω, 880 W 180 W
550A, 590A, or 780A JUSP-RA05-E 3.13 Ω, 1760 W 350 W
JUSP-RA04-E JUSP-RA05-E
Lead: L = 300
Rated power: 150 W
Resistance range: 2 Ω to 100 Ω
Wire size: AWG14 (2.0 mm
2
)
Mass: 1.3 kg
300
±1
288
±0.5
278
300
±50
4 × 4.5 dia.
2 × 4.5 dia.
139.5
±0.5
150
±1
120
±0.5
17
±1
5.5
6
Unit: mm
3
250
234
218
60
80
4.5
40
2 × 4.5 dia.
2-M3
Unit: mm
Lead: L = 450
Rated power: 300 W
Resistance range: 2 to 50
Wire size: AWG14 (2.0 mm
2
)
Mass: 1.4 kg
4×M5
External
terminals
4 × M5
Ground terminal
(M4 screw)
Cement resistor
Protective
cover
180
220
335
350
30
92
(1.6)
Unit: mm
External
terminals
2 × 4 × M5
Ground
terminal
(M4 screw)
Cement resistor
30
250
4
×
M5
300
335
350
Protective
cover
95
(1.6)
Unit: mm

Table of Contents

Related product manuals