EasyManua.ls Logo

YASKAWA SGDM - 4.7.5 Three-phase 200 V: 2.0 kW;3.0 kW (20 AD to 30 AD, 20 ADA to 30 ADA)

YASKAWA SGDM
578 pages
To Next Page IconTo Next Page
To Next Page IconTo Next Page
To Previous Page IconTo Previous Page
To Previous Page IconTo Previous Page
Loading...
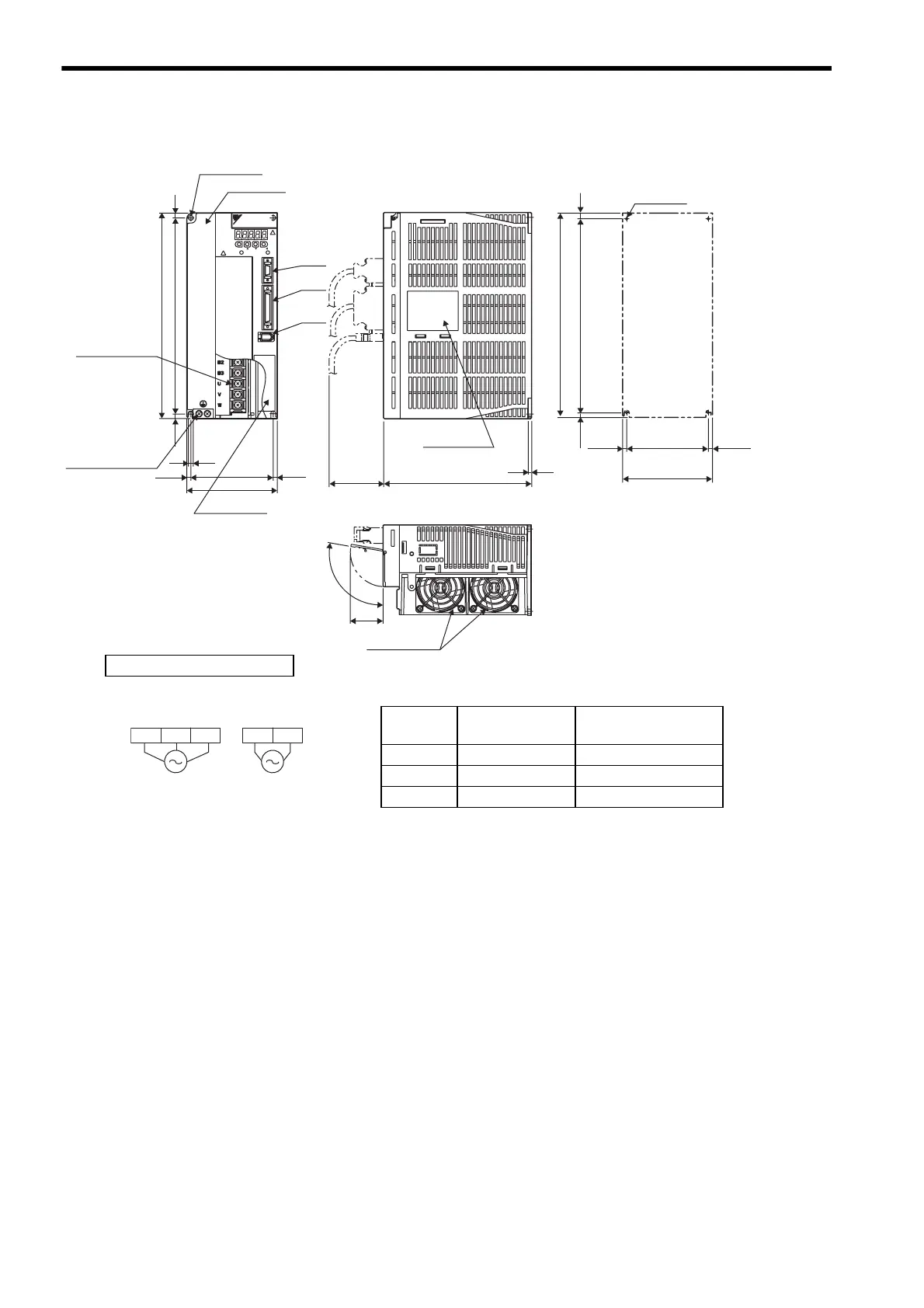
4 SERVOPACK Specifications and Dimensional Drawings
4.7.5 Three-phase 200 V: 2.0 kW/3.0 kW (20AD to 30AD, 20ADA to 30ADA)
4-20
4.7.5 Three-phase 200 V: 2.0 kW/3.0 kW (20AD to 30AD, 20ADA to 30ADA)
External Terminal Connector
SERVOPACK Connector
Connector
Symbol
SERVOPACK
Connector Model
Manufacturer
CN1 10250-52A2JL Sumitomo 3M Co., Ltd.
CN2 53460-0611 Molex Japan Co., Ltd.
CN3 10214-52A2JL Sumitomo 3M Co., Ltd.
Cooling fan
Heat sink
2×φ6 holes
CN1
CN2
CN3
CN1
CN2
(100°)
CN3
6
YASKAWA SERVOPACK
SGDM-
14-pin terminal
M4 mounting
screw
250
238.5
6
100
110
(75)
180
4
(5.5)
(5)
(5)
(40)
250
238.5±0.5
100±0.5
110
(5.5)
(5)
(5)
6
MODE/SET
CHARGE POWER
DATA/
YASKAWA
Ground terminal
2×M4 screws
Nameplate
Nameplate
(Mounting pitch)
4×M5 tap
Mounting Hole Diagram
(Mounting pitch)
Units: mm
Approx. mass: 3.8 kg
L1C L2CL2 L3L1
200 VAC
50/60 Hz
Three-phase
200 VAC
50/60 Hz
Single-phase
Main circuit
power supply
Control power
supply

Table of Contents

Related product manuals