EasyManua.ls Logo

YASKAWA SGDM - 4.8 Dimensional Drawings of Rack-mounted SERVOPACK Model; 4.8.1 Single-phase 100 V: 30 W;50 W;100 W (A3 BD-R to 01 BD-R, A3 BDA-R to 01 BDA-R) Single-phase 200 V: 30 W;50 W;100 W;200 W (A3 AD-R to 02 AD-R, A3 ADA-R to 02 ADA-R)

YASKAWA SGDM
578 pages
Print Icon
To Next Page IconTo Next Page
To Next Page IconTo Next Page
To Previous Page IconTo Previous Page
To Previous Page IconTo Previous Page
Loading...
4 SERVOPACK Specifications and Dimensional Drawings
4.8.1 Single-phase 100 V: 30 W/50 W/100 W (A3BD-R to 01BD-R, A3BDA-R to 01BDA-R) Single-phase 200 V: 30 W/50 W/100 W/200 W
(A3AD-R to 02AD-R, A3ADA-R to 02ADA-R)
4-24
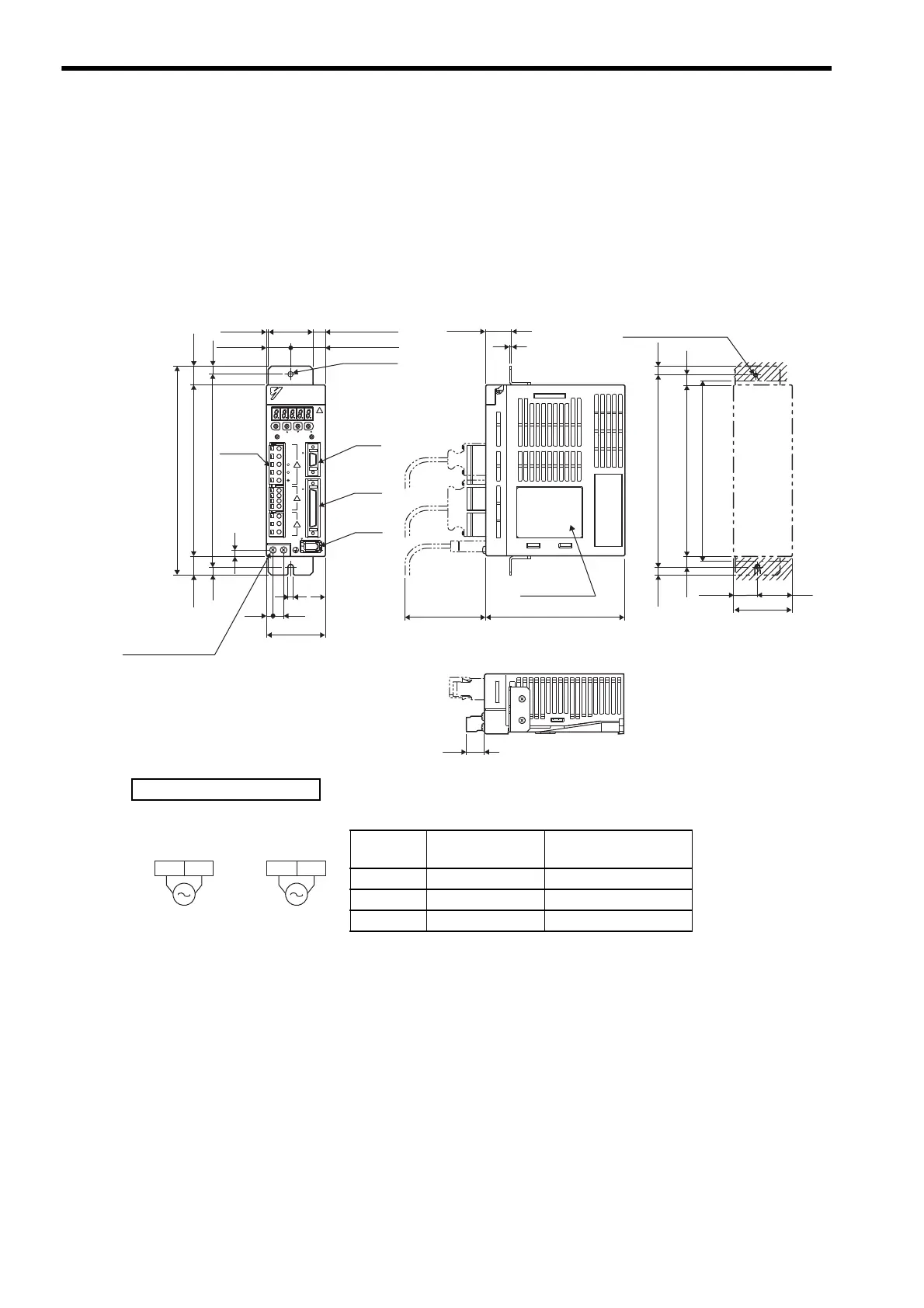
4.8 Dimensional Drawings of Rack-mounted SERVOPACK Model
4.8.1 Single-phase 100 V: 30 W/50 W/100 W
(A3BD-R to 01BD-R, A3BDA-R to 01BDA-R)
Single-phase 200 V: 30 W/50 W/100 W/200 W
(A3AD-R to 02AD-R, A3ADA-R to 02ADA-R)
CN3
CN2
CN1
6
YASKAWA SERVOPACK
SGDM-
6
180
160
195
17.5
7.5
17.5
55
10
5
42
1.5
22.5
φ
160
130
55
22.5
7.5
180±0.5
10
2
17
(7.5)
(11.5)
(32.5)
5 hole
24.5
(75)
(7.5)
(10)
(32.5)
Min.166
YAS KAWA
CHANGE
L1
C
N
3
L2
L2C
B1
B2
U
V
W
L1C
POWER
+ 1
+ 2
C
N
1
C
N
2
MODE/SET
DATA/
Ground terminal
2×M4 screws
Nameplate
Mounting Hole Diagram
2×M4 screw holes
(Mounting pitch)
Units: mm
Approx. mass: 1.0 kg
Terminal
block
External Terminal Connector
SERVOPACK Connector
Connector
Symbol
SERVOPACK
Connector Model
Manufacturer
CN1 10250-52A2JL Sumitomo 3M Co., Ltd.
CN2 53460-0611 Molex Japan Co., Ltd.
CN3 10214-52A2JL Sumitomo 3M Co., Ltd.
L1 L2
Main circuit
power supply
Control power
supply
Single-phase
100/200 VAC
50/60 Hz
L1C L2C
Single-phase
100/200 VAC
50/60 Hz

Table of Contents

Related product manuals