EasyManua.ls Logo

YASKAWA SGDM - 6.3.6 Interface Circuit

YASKAWA SGDM
578 pages
Print Icon
To Next Page IconTo Next Page
To Next Page IconTo Next Page
To Previous Page IconTo Previous Page
To Previous Page IconTo Previous Page
Loading...
6.3 Examples of I/O Signal Connections
6-15
6
Wiring
6.3.6 Interface Circuit
This section shows examples of SERVOPACK I/O signal connection to the host controller.
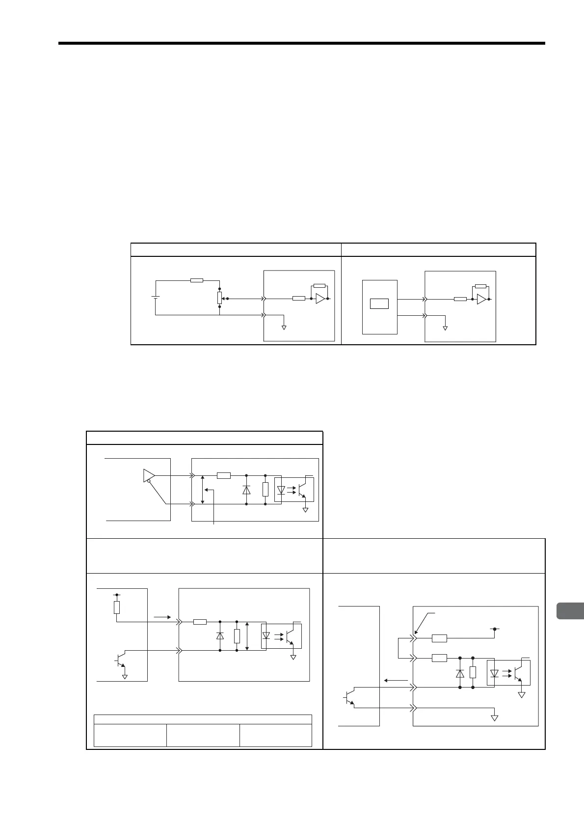
(1) Interface for Reference Input Circuits
(a) Analog Input Circuit
CN1 connector terminals, 5-6: Speed reference input and 9-10: Torque reference input are explained below.
Analog signals are either speed or torque reference signals at the impedance below.
• Reference speed input: About 14 kΩ
• Reference torque input: About 14 kΩ
The maximum allowable voltages for input signals is
±12 V.
(b) Position Reference Input Circuit
CN1 connector terminals, 7-8: Reference pulse input, 11-12: Reference code input and 15-14: Clear input are
explained below.
An output circuit for the reference pulse and position error pulse clear signal at the host controller can be either
line-driver or open-collector outputs. The following shows by type.
Analog Voltage Input Circuit Analog Voltage Input Circuit (D/A)
1.8 k
Ω (1/2 W)min.
25HP-10B
2 k
Ω
3
2
12 V
1
0 V
SG
About 14 kΩ
SERVOPACK
V-REF or
T-REF
0 V
SG
Host controller
About 14 kΩ
SERVOPACK
V-REF or
T-REF
D/A
Line-driver Output Circuit
Open-collector Output, Example 1:
Power Supply Provided by User
Open-collector Output, Example 2:
Using 12-V Power Supply Built into SERVOPACK,
Non-insulated Input
150 Ω
4.7 kΩ
2.8 V
(H level) - (L level)
3.7 V
Applicable line driver
SN75174 manufactured
by Texas Instruments
or the equivalent
Host controller
SERVOPACK
V
F
= 1.5 to 1.8 V
Vcc
Tr1
V
F
R1
i
150 Ω
4.7 kΩ
Use the examples below to set pull-up resistor R1 so the input
current, i, falls between 7 mA and 15 mA.
Application Examples
R1 = 2.2 kΩ with a
Vcc of 24 V
±
5%
R1 = 1 kΩ with a
Vcc of 12 V
±
5%
R1 = 180 Ω with a
Vcc of 5 V
±
5%
Host controller
SERVOPACK
PL1, PL2, PL3 terminals
0 V
SG
+12 V
1.0 kΩ
150 Ω
1.5 V max.
when ON
About
9 mA
Host controller
SERVOPACK

Table of Contents

Related product manuals