EasyManua.ls Logo

YASKAWA SGDM - 5.8.13 Surge Absorber (for lightning surge)

YASKAWA SGDM
578 pages
Print Icon
To Next Page IconTo Next Page
To Next Page IconTo Next Page
To Previous Page IconTo Previous Page
To Previous Page IconTo Previous Page
Loading...
5.8 Peripheral Devices
5-79
5
Specifications and Dimensional Drawings of Cables and Peripheral Devices
5.8.13 Surge Absorber (for lightning surge)
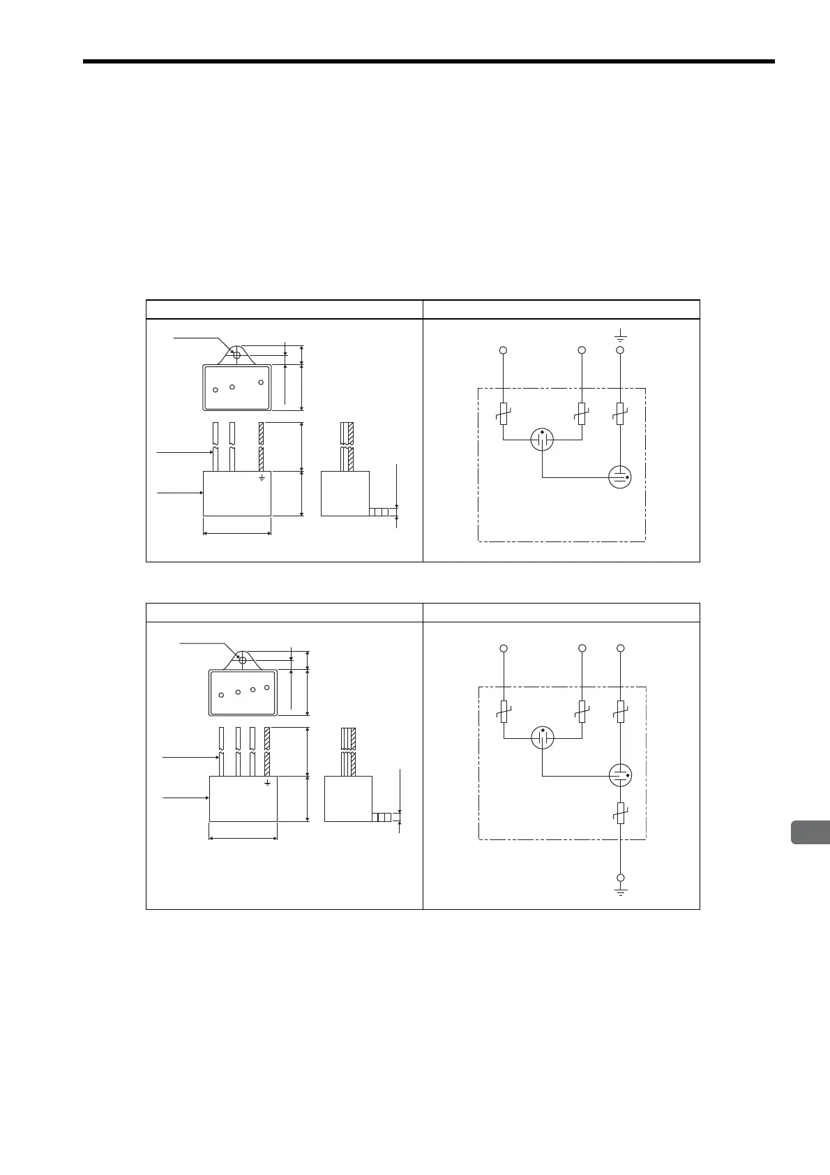
(1) Model: RxCxM-601BQZ-4 and RxCxM-601BUZ-4 (Sold as Surge Protector)
Manufactured by Okaya Electric Industries Co., Ltd.
The surge absorber absorbs lightning surge and prevents faulty operation in or damage to electronic circuits.
Recommended surge absorbers are listed below.
(2) Dimensional Drawings
(a) RxCxM-601BQZ-4
(b) R
xCxM-601BUZ-4
Dimensional Drawings Internal Connection Diagram
Dimensional Drawings Internal Connection Diagram
φ4.2±0.5
Case
Connection
cables
Units: mm
5.5
±
1.0
11
±
1
28.5
±
1.0
200-0
+30
12
4.5
±
0.5
41
±
1
28
±
1
12
φ4.2
±
0.5
Case
Connection
cables
200-0
+30
123
Units: mm
5.5
±
1.0
4.5
±
0.5
41
±
1
11
±
1
28.5
±
1.0
28
±
1
123

Table of Contents

Related product manuals