EasyManua.ls Logo

YASKAWA SGDM - 4.8.3 Three-phase 200 V: 500 W;750 W;1.0 kW (05 AD-R to 10 AD-R, 05 ADA-R to 10 ADA-R)

YASKAWA SGDM
578 pages
Print Icon
To Next Page IconTo Next Page
To Next Page IconTo Next Page
To Previous Page IconTo Previous Page
To Previous Page IconTo Previous Page
Loading...
4 SERVOPACK Specifications and Dimensional Drawings
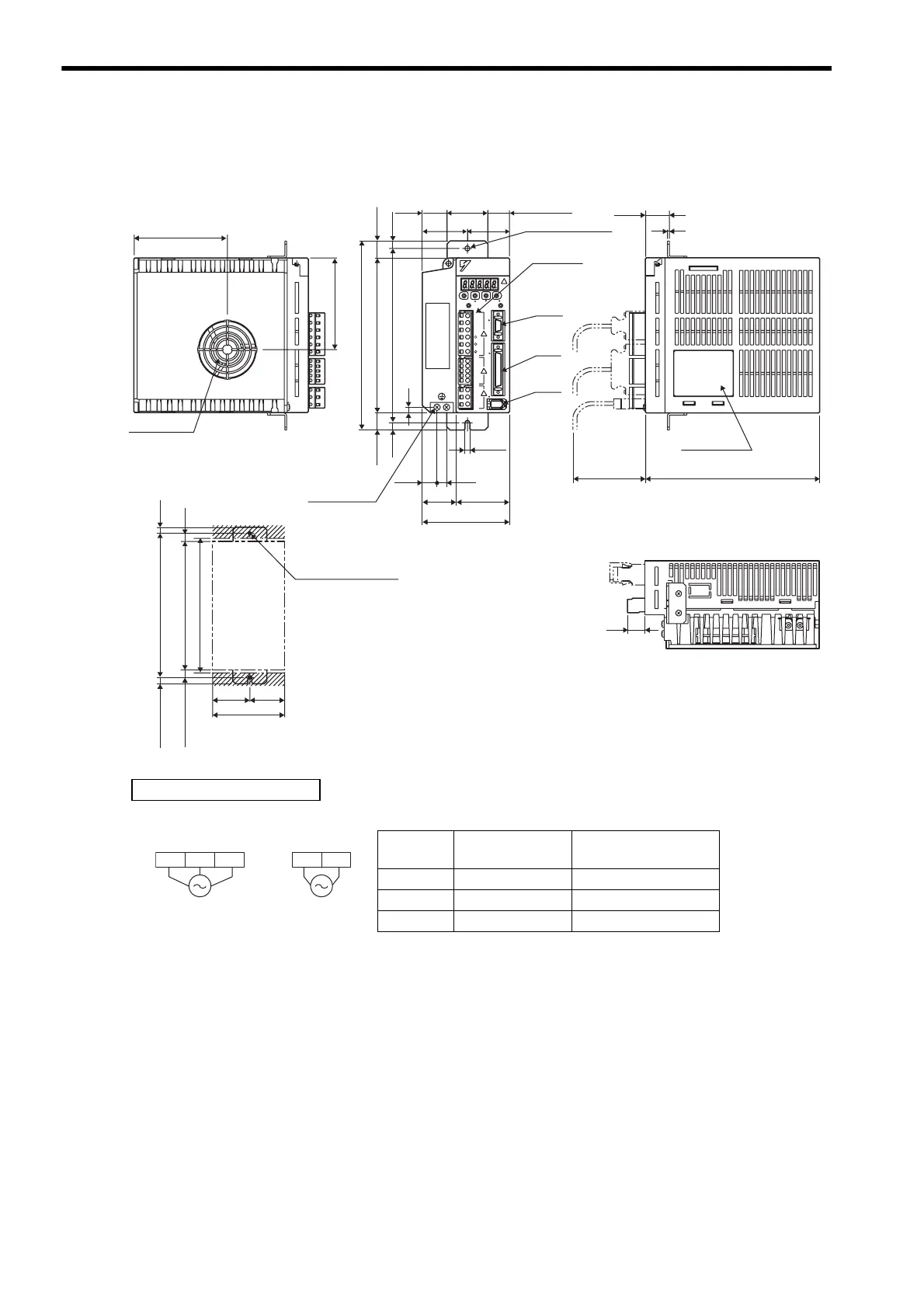
4.8.3 Three-phase 200 V: 500 W/750 W/1.0 kW (05AD-R to 10AD-R, 05ADA-R to 10ADA-R)
4-26
4.8.3 Three-phase 200 V: 500 W/750 W/1.0 kW
(05AD-R to 10AD-R, 05ADA-R to 10ADA-R)
Mounting Hole Diagram
96.2
180(75)
17
7.5
(10)
160
90
180
94.4
7.5
7.5
195
160
17.5
17.5
6
90
55
35
10
15
5
42
46.5 43.5
25.5
2
24.5
φ
46.5
Cooling fan
(7.5)
CN3
CN2
CN1
YAS KAWA
YAS KAWA
SERVOPACK200V
SGDM-
5 hole
180±0.5
Min.168
2×M4 screw holes
(43.5)
10
(22.5)
CHANGE
MODE/SET
DATA/
POWER
L1
C
N
3
L2
L3
L2C
B1
B2
B3
U
V
W
L1C
+ 1
+ 2
C
N
1
C
N
2
Ground
terminal
2×M4 screws
Terminal
block
Nameplate
(Mounting pitch)
Units: mm
Approx. mass: 1.9 kg
External Terminal Connector
SERVOPACK Connector
Connector
Symbol
SERVOPACK
Connector Model
Manufacturer
CN1 10250-52A2JL Sumitomo 3M Co., Ltd.
CN2 53460-0611 Molex Japan Co., Ltd.
CN3 10214-52A2JL Sumitomo 3M Co., Ltd.
Three-phase
200 VAC
50/60 Hz
Single-phase
200 VAC
50/60 Hz
L2 L3L1 L1C L2C
Main circuit
power supply
Control power
supply

Table of Contents

Related product manuals