EasyManua.ls Logo

ARCOMA PRECISION i5 - Transport Interval Zone

ARCOMA PRECISION i5
174 pages
Print Icon
To Next Page IconTo Next Page
To Next Page IconTo Next Page
To Previous Page IconTo Previous Page
To Previous Page IconTo Previous Page
Loading...
Operating the System
Transport Interval Zone
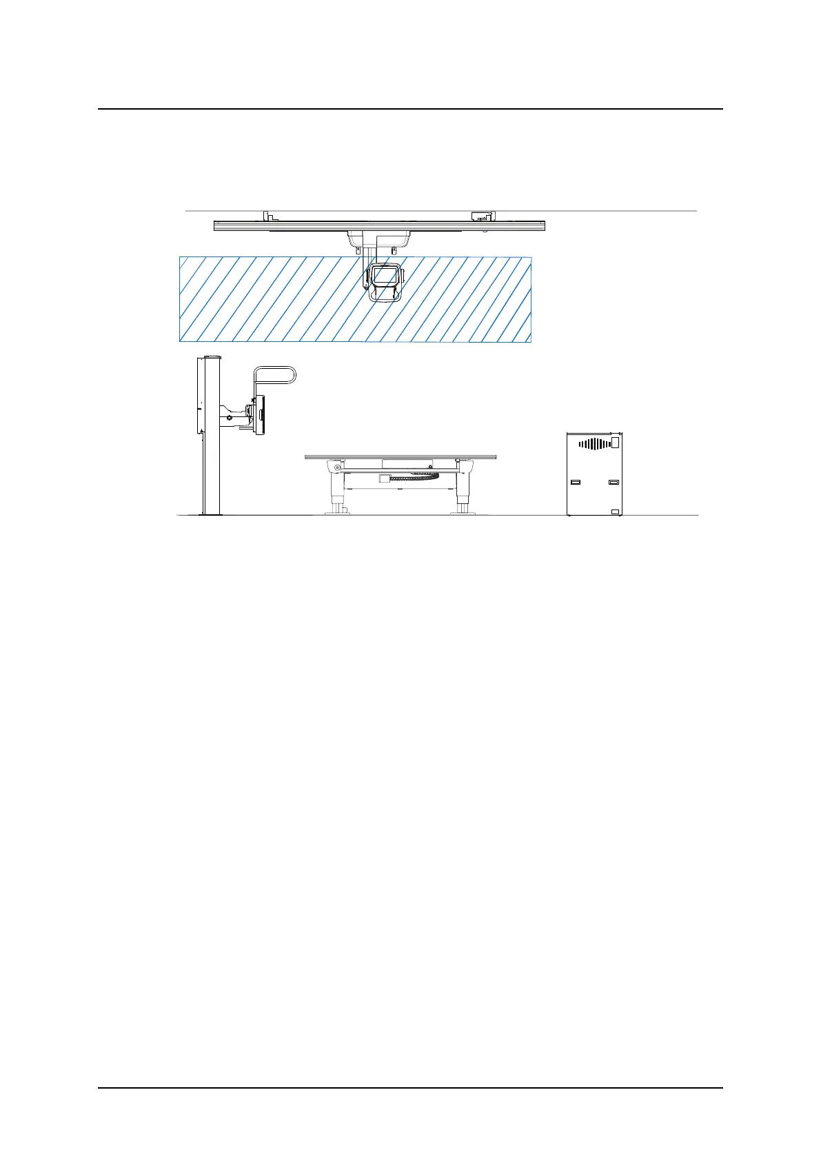
4.6 Transport Interval Zone
Outside the short-cut zones, movements between auto-positions are performed in a defined
transport interval zone. The upper and lower limits are defined at System installation.
4086
Max.
Min.
Transport interval zone
Fig. 4-20
When moving between positions outside the short-cut zones, the OTC will first move to the
transport interval zone.
Inside the transport interval zone the OTC will move horizontally until it reaches the intended
X, Y-position.
Then the OTC will move vertically, to the intended Z-position.
ARCOMA AB 1000-095-051-EN Rev. 1.1
Operation Manual
SWEDEN Page 106 2020-06-16

Table of Contents