EasyManua.ls Logo

Axia Element - A Word about the GPIO Ports; Input Connections; Output Connections

Axia Element
178 pages
Print Icon
To Next Page IconTo Next Page
To Next Page IconTo Next Page
To Previous Page IconTo Previous Page
To Previous Page IconTo Previous Page
Loading...
3: Conguring GPIO • 35
©2008 Axia Audio — Rev. 3.0
once again become active.
See how easy that was? Simply assigning an existing
audio source to a GPIO port automagically configures
the port for the type of device supplying the audio, and
send the appropriate logic commands to that port when
the source is assigned to a Element channel.
A word about the GPIO Ports
Input Connections
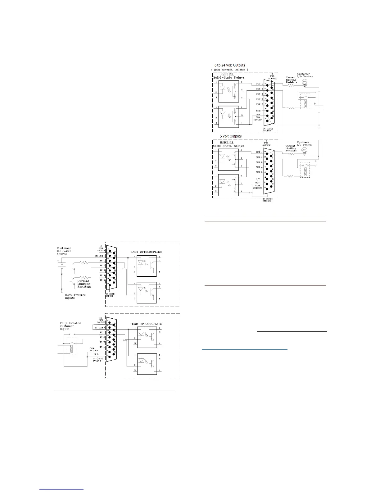
Current on these inputs must be limited to 20 mA or
less, through the use of a current-limiting resistor. An
external power source (24 volts DC maximum) is rec-
ommended for all inputs and outputs, to prevent ground
loops between equipment. However, if customer equip-
ment is completely isolated, using power from the GPIO
Port connectors is acceptable. Figure 3-5 shows details
for both types of connections:
Figure 3-5: GPIO input connections
Output Connections
The GPIO node’s outputs are opto-isolated. Current
should be limited 100 mA through each output, with the
total current draw from the +5 Volt supply not to exceed
3 amps. Figure 3-6 shows the recommended connections
for outputs:
Figure 3-6: GPIO output connections
Note: Some external devices will allow a logic
control input “sink to ground” to activate. Thus,
some devices may not work with an Axia GPO
control, because they may not fully achieve
ground through the output transistor. The volt-
age drop between the collector and emitter may
not be low enough to activate the device, so an
external relay controlled by the GPO may need
to be used to provide a “dry” contact closure to
the external device.
Please note that this section is provided only as a
“jump-start” introduction to Axia GPIO nodes. For a full
understanding of the GPIO node’s options and require-
ments, please read the GPIO Node User’s Manual in-
cluded with your GPIO node, or available for download
at www.AxiaAudio.com/downloads/ .
What's Next
When youre ready, join us in Chapter Four for a
comprehensive walk-through of Element operations. q

Table of Contents

Related product manuals