EasyManua.ls Logo

Branson S83 - 5.11 Mounting and Wiring EB-Type Immersible Transducers; EB Immersible Transducer Models and Dimensions

Branson S83
104 pages
Print Icon
To Next Page IconTo Next Page
To Next Page IconTo Next Page
To Previous Page IconTo Previous Page
To Previous Page IconTo Previous Page
Loading...
S83/85 Ultrasonic Generator System Installation
A40-064 Rev 0 Page 67
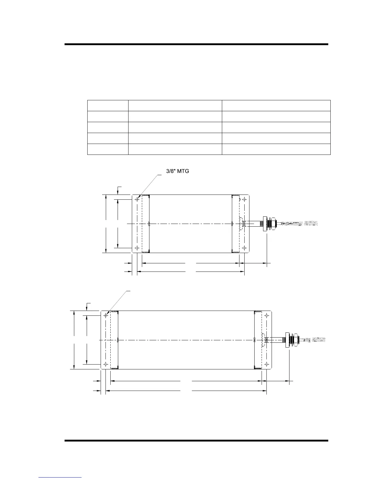
5.11 Mounting and Wiring EB-Type Immersible Transducers
5.11.1 EB Immersible Transducer Models and Dimensions
SB type immersible transducers mount on the bottom of a custom ultrasonic tank.
Table 9 EB Type Immersibles
Model Chrome Bright Annealed
EB610-25-6 101-910-680 101-910-699
EB618-25-12 101-910-682 101-910-696
EB610-40-6 101-910-681 101-910-698
EB618-40-12 101-910-683 101-910-697
Figure 5-31 EB Type Immersible Transducer Dimensions
DANBURY CT. U.S.A.
CORPORATION
BRANSON ULTRASONICS
SERIAL XX − XXXX − XX
MODEL EB610 − XX − 6
MODEL EB618 − XX − 12
SERIAL XX − XXXX − XX
BRANSON ULTRASONICS
CORPORATION
DANBURY CT. U.S.A.
18"
19"
5"6"
1/2"
HOLE (4)
5"6"
1/2"
3/8" MTG
HOLE (4)
11"
10"1"
1/2"
1"
1/2"
2-5/8"
2-5/8"

Table of Contents