EasyManua.ls Logo

CASE CONSTRUCTION Alpha Series - Page 270

CASE CONSTRUCTION Alpha Series
300 pages
Print Icon
To Next Page IconTo Next Page
To Next Page IconTo Next Page
To Previous Page IconTo Previous Page
To Previous Page IconTo Previous Page
Loading...
9-SPECIFICATIONS
93100227212
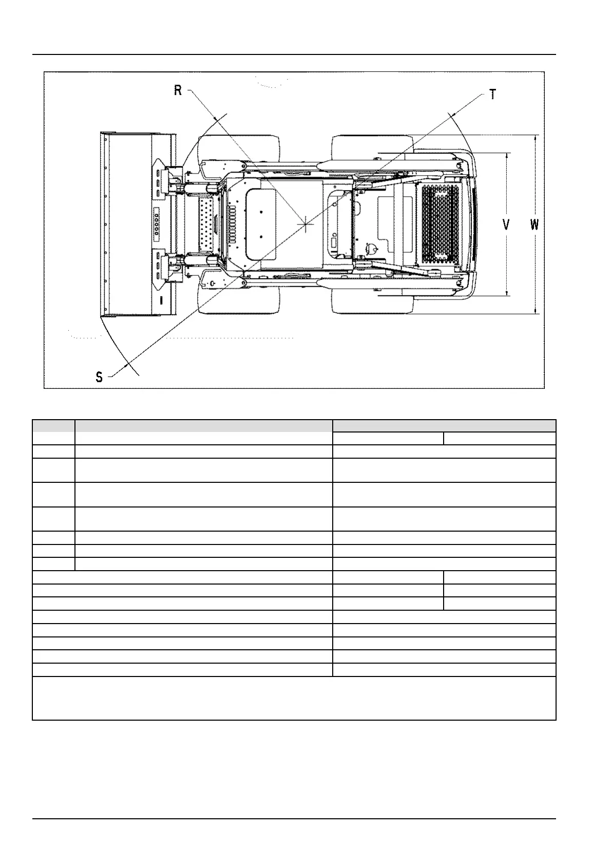
LARGEVERTICALFRAMEWHEELUNIT(SV250,SV300)
ITEM
COMPONENTMEASUREMENT
SV250SV300
R
Clearancecircleradiuswithouttool1415mm(55.7in)
SClearancecircleradiuswith1828.8mm(72.0in)DF
bucket
2136mm(84.1in)
SClearancecircleradiuswith1828.8mm(72.0in)LP
bucket
2230mm(87.8in)
SClearancecircleradiuswith1828.8mm(72.0in)LPE
bucket
2348mm(92.4in)
T
Clearancecircleradiusrear1789.0mm(70.4in)
V
Overthetirewidth1448.0mm(57.0in)
W
Overallwidth1768.0mm(69.6in)
Operatingweight3630kg(8003lb)3765kg(8300lb)
SAERatedOperatingCapacity(ROC)1135kg(2502lb)1364kg(3007lb)
Tippingload
2270kg(5004lb)2727kg(6012lb)
Counterweight(optional)136.0kg(299.8lb)
Cabsideglass(optional)21.3kg(47.0lb)
Cabglassdoor(optional)34.0kg(75.0lb)
CabLexandoor(optional)34.0kg(75.0lb)
Suspensionseat(optional)10.0kg(22.0lb)
NOTE:Measurementsarebasedonmachineswith12x16.5tiresanda1829mm(72in)LowProle(LP)bucket.
NOTE:ClearanceCircleRadius(R,S,T)valueswerecalculatedusinga50/50weightdistribution(centerpointof
counterrotationcenteredbetweentheaxles)andwiththebucketrestingatonground.
9-14

Table of Contents

Related product manuals