EasyManua.ls Logo

Fuji Electric Frenic Mega Series - Page 578

Fuji Electric Frenic Mega Series
774 pages
To Next Page IconTo Next Page
To Next Page IconTo Next Page
To Previous Page IconTo Previous Page
To Previous Page IconTo Previous Page
Loading...
11.4 Option
11-43
Chapter 11 SELECTING PERIPHERAL EQUIPMENT
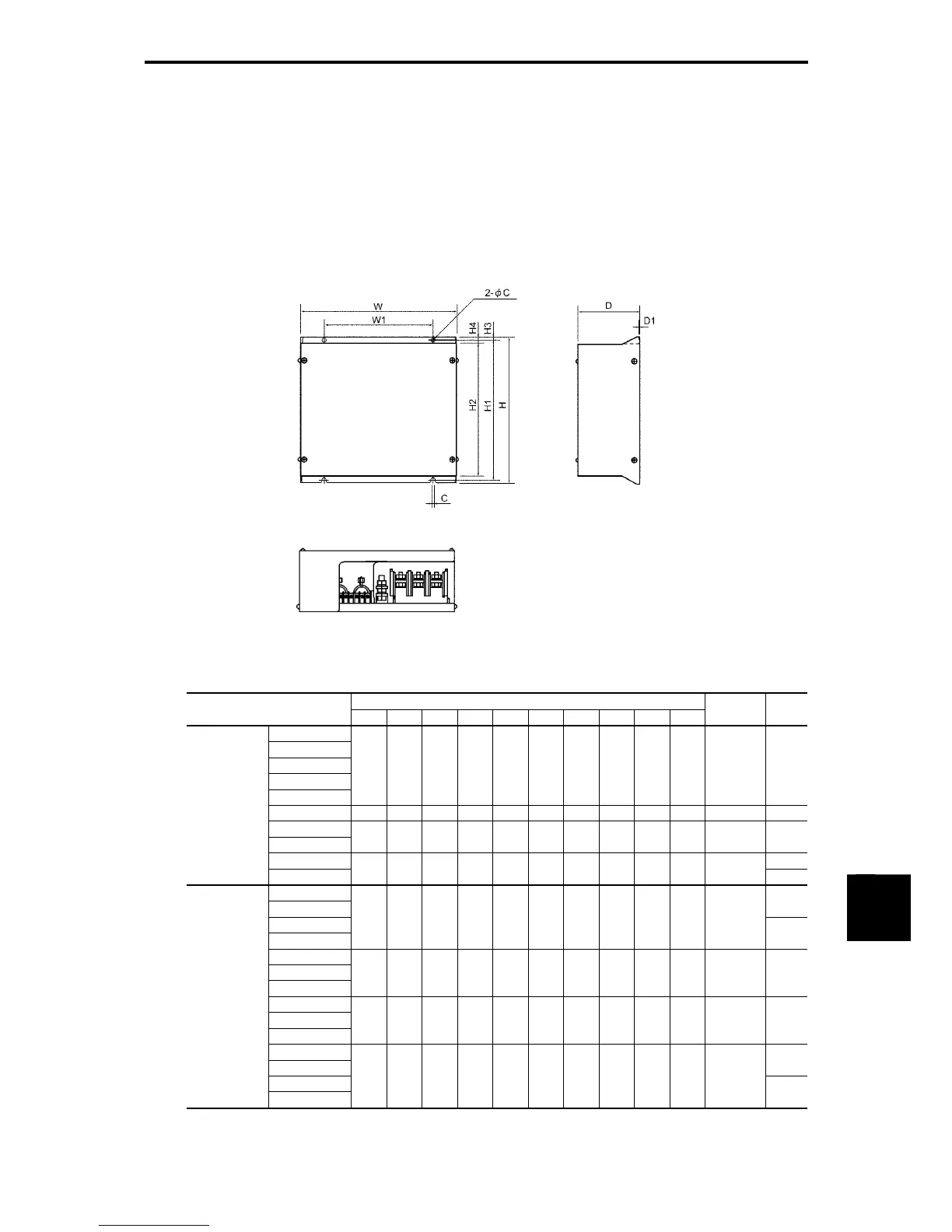
<Charging box>
The charging box contains a combination of a charging resistor and a fuse, which is essential in the
configuration of the RHC-C series. Using this charging box eases mounting and wiring jobs.
Capacity range
200 V class series: 7.5 to 90 kW in 10 types, 400 V class series: 7.5 to 220 kW in 14 types, total 24 types
400 V class series: The charging resistor and the fuse are separately provided with a capacity of 280 to
400 kW.
Figure 11.4-14
Table 11.4-16
Dimensions (mm)
Charging box type
W W1 H H1 H2 H3 4 D D1 C
Mounting
bolt
Mass
(kg)
CU7.5-2C
CU11-2C
CU15-2C
CU18.5-2C
CU22-2C
270 170 300 285 270 7.5 15 100 2.4 6 M5 6
CU30-2C 300 200 310 295 280 7.5 15 110 2.4 6 M5 7
CU45-2C
CU55-2C
330 230 310 295 280 7.5 15 130 2.4 6 M5 8
CU75-2C 17
200 V class
series
CU90-2C
430 330 560 536 510 12 25 150 3.2 10 M8
20
CU7.5-4C
CU15-4C
5.5
CU18.5-4C
CU22-4C
270 170 300 285 270 7.5 15 100 2.4 6 M5
6
CU30-4C
CU45-4C
CU55-4C
300 200 310 295 280 7.5 15 110 2.4 6 M5 7
CU75-4C
CU90-4C
CU110-4C
330 230 310 295 280 7.5 15 130 2.4 6 M5 8
CU132-4C
CU160-4C
18
CU200-4C
400 V class
series
CU220-4C
430 330 560 536 510 12 25 150 3.2 10 M8
20

Table of Contents

Related product manuals