EasyManua.ls Logo

HSD ES919 NC - Technical Specifications of Belt Driven C Axis Unit; Overall Dimensions of ES919 ISO30 Short Nose with Belt Driven C Axis Unit

Default Icon
98 pages
Print Icon
To Next Page IconTo Next Page
To Next Page IconTo Next Page
To Previous Page IconTo Previous Page
To Previous Page IconTo Previous Page
Loading...
______HSD Technological equipment for Automation _____________________________________
5801H0017 Rev. 02 _________________________________________________________ 32/98
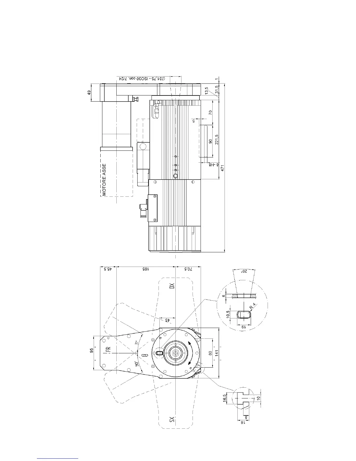
7.6 TECHNICAL SPECIFICATIONS OF BELT DRIVEN C AXIS UNIT
7.6.1 Overall dimensions of ES919 ISO30 Short Nose with belt driven C Axis
unit

Table of Contents