EasyManua.ls Logo

Kyocera TASKalfa 2550ci - Intermediate Transfer Unit Section Block Diagram

Kyocera TASKalfa 2550ci
555 pages
To Next Page IconTo Next Page
To Next Page IconTo Next Page
To Previous Page IconTo Previous Page
To Previous Page IconTo Previous Page
Loading...
2MV-C
2-1-14
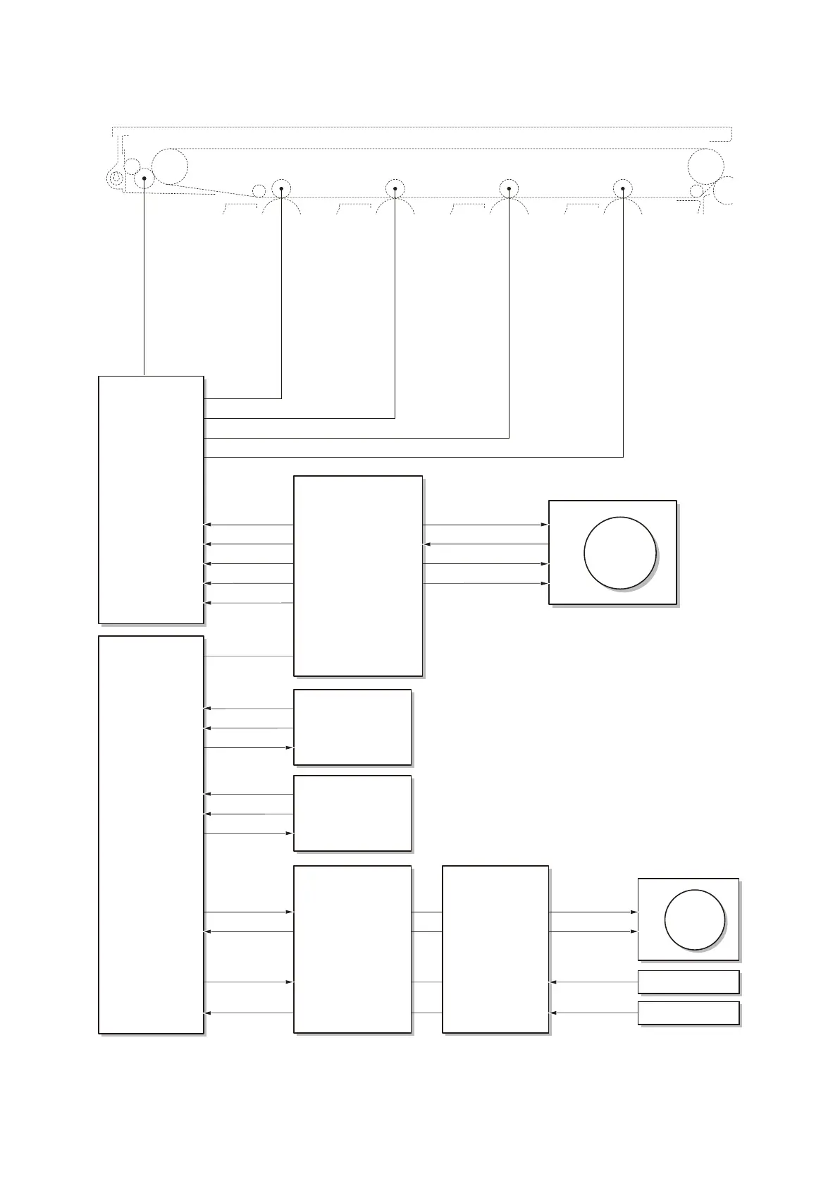
Figure 2-1-17 Intermediate transfer unit section block diagram
DEVM-K
HVPWB-S
EPWB
ECPWB
Cleaning bias
Inter mediate transfer unit
Primary transfer bias Y
Primary transfer bias C
Primary transfer bias M
Primary transfer bias K
YC4-1
YC4-2
YC4-3
YC4-4
DLPK_MT_DIR
DLPK_MT_RDY
DLPK_MT_CLK
DLPK_MT_REM
6
5
4
3
TCCPWB TCPWB
2
3
5
6
T1MCNT
T1YCNT
CLCNT
T1CCNT
YC13-7
YC13-6
YC13-4
YC13-3
7
T1KCNT
YC13-2
YC5-1
YC5-2
YC5-3
YC2-8
YC2-7
YC2-6
YC5-7 YC2-2
YC1-3
YC1-5
YC1-8
YC1-7
YC16-1 1
YC16-2 2
YC16-4 4
YC16-6 1
YC16-7 2
YC16-9 4
YC1 YC9
BLTREMA
BELT_S1
BLTREMB
BELT_S1
BELT_S2
YC2-1
YC2-2
YC2-5
YC2-8
BELT_S2
YC1-4
YC1-6
YC1-7
YC1-8
ID1S
ID1P
LEDREF1
ID2S
ID2P
LEDREF2
IDS1
IDS2
1
TCBS1
1
TCBS2
1
2
TCBRM
BLTREMA
BLTREMB

Table of Contents

Other manuals for Kyocera TASKalfa 2550ci

Related product manuals