EasyManua.ls Logo

LeeBoy 8616B - Operator Control Panel Assembly

LeeBoy 8616B
287 pages
Print Icon
To Next Page IconTo Next Page
To Next Page IconTo Next Page
To Previous Page IconTo Previous Page
To Previous Page IconTo Previous Page
Loading...
OPERATOR CONTROL PANEL ASSEMBLY
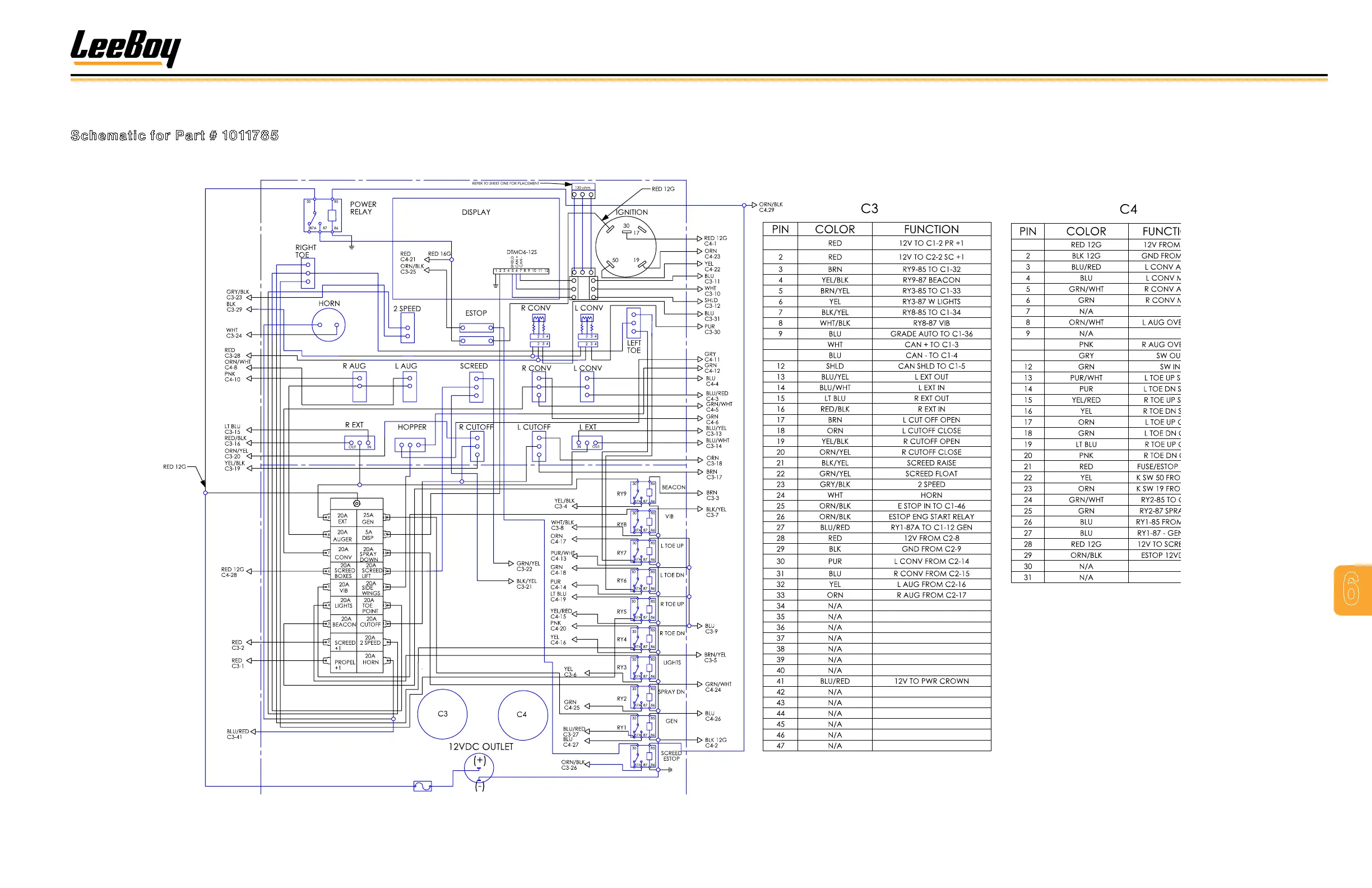
Schematic for Part # 1011785
B
A
C
ACC
10
11
1
10A
10A
1
1
1
1
B
A
C
C
A
B
C
A
B
10A CIRCUIT
BREAKER
1
10
11
1
10
11
Figure 6-3. Operator Control Panel Assembly
LeeBoy 8616B Conveyor Paver 6-7
Schematics
6

Table of Contents

Related product manuals