EasyManua.ls Logo

QuickLabel Systems QLS-4100 - Page 177

QuickLabel Systems QLS-4100
215 pages
Print Icon
To Next Page IconTo Next Page
To Next Page IconTo Next Page
To Previous Page IconTo Previous Page
To Previous Page IconTo Previous Page
Loading...
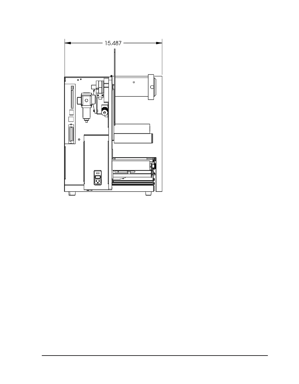
QLS-4100 Xe A-3
QLS-4100 Xe Dimensions
*all dimensions are in inches

Table of Contents

Related product manuals