EasyManua.ls Logo

Renesas M16C/29 Series - Protection

Renesas M16C/29 Series
501 pages
Print Icon
To Next Page IconTo Next Page
To Next Page IconTo Next Page
To Previous Page IconTo Previous Page
To Previous Page IconTo Previous Page
Loading...
8. Protection
puorG92/C61M
page 69
854fo7002,03.raM21.1.veR
2110-1010B90JER
8. Protection
In the event that a program runs out of control, this function protects the important registers so that they will
not be rewritten easily. Figure 8.1 shows the PRCR register. The following lists the registers protected by
the PRCR register.
• Registers protected by the PRC0 bit: CM0, CM1, CM2, PLC0, ROCR, PCLKR, and CCLKR
• Registers protected by the PRC1 bit: PM0, PM1, PM2, TB2SC, INVC0, and INVC1
• Registers protected by the PRC2 bit: PD9 , PACR, S4C, and NDDR
Registers protected by the PRC3 bit: VCR2 and D4INT
The PRC2 bit is set to 0 (write enabled) when data is written to the SFR area after setting the PRC2 bit to 1
(write enable). Set registers PD9, PACR, S4C and NDDR immediately after setting the PRC2 bit in the
PRCR register to 1 (write enable). Do not generate an interrupt or a DMA transfer between the instruction
to set the PRC2 bit to 1 and the following instruction. Bits PRC3, PRC1, and PRC0 are not set to 0 even if
data is written to the SFR area. Set bits PRC3, PRC1, and PRC0 to 0 by program.
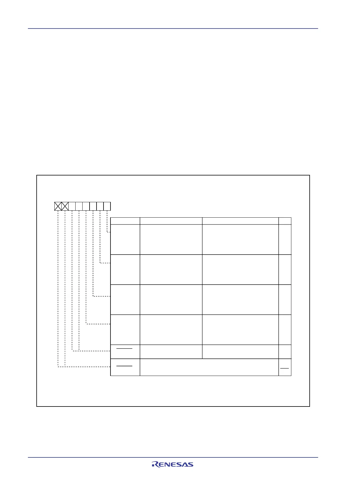
Protect Register
Symbol Address After Reset
PRCR 000A
16
XX000000
2
Bit NameBit Symbol
b7 b6 b5 b4 b3 b2 b1 b0
PRC1
PRC0
PRC2
Function
RW
0
RW
RW
RW
Nothing is assigned. If necessary, set to 0.
When read, its content is undefined
Reserved bit
Set to 0
RW
Protect bit 0
Protect bit 1
Protect bit 2
PRC3
RW
Protect bit 3
Enable write to registers VCR2 and
D4INT
(b5-b4)
(b7-b6)
0
NOTE:
1. The PRC2 bit is set to 0 when writing into the SFR area after the PRC2 bit is set to 1. Bits
PRC0, PRC1, and PRC3 are not automatically set to 0. Set them to 0 by program.
Enable write to register CM0, CM1,
CM2, ROCR, PLC0, PCLKR, and
CCLKR
Enable write to registers PM0, PM1,
PM2, TB2SC, INVC0, and INVC1
0: Write protected
1: Write enabled
0: Write protected
1: Write enabled
Enable write to registers PD9,
PACR, S4C, and NDDR
0: Write protected
1: Write enabled
(1)
0: Write protected
1: Write enabled
Figure 8.1 PRCR Register

Table of Contents

Related product manuals