EasyManua.ls Logo

Roxell FLEX-AUGER FA 75 - Page 160

Default Icon
178 pages
Print Icon
To Next Page IconTo Next Page
To Next Page IconTo Next Page
To Previous Page IconTo Previous Page
To Previous Page IconTo Previous Page
Loading...
ROXELL - 031 - 0516
FLEX-AUGER - INSTALLATION INSTRUCTIONS
III-62
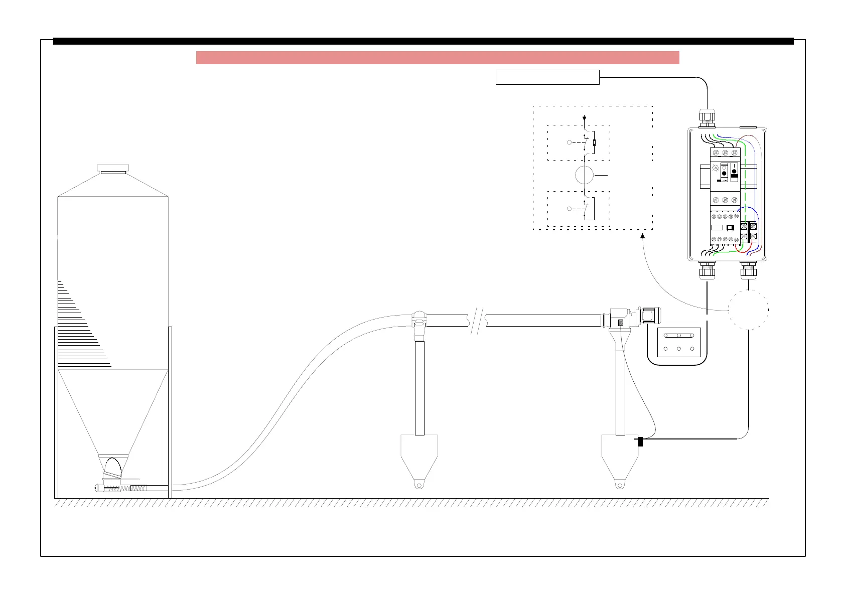
MAXIMUM CABLE LENGTHS TO THE MOTORS: SEE PAGE III-77
Sense of rotation of t he auger : see arrow on power unit. Attention : Compare setting of motor p rotection with data on motor name plate.
WIRING DIAGRAM FOR 3X400V
Control unit
3x400V +N AC (IEC38)
Level switch
1
2
1
2
2
1
W2 U2 V2
U1 V1 W1
Sw1
Sw2
Sw2
Sw1
STOP START
OFF
1
L1
3
L2
5
L3
2
T1
4
T2
6
T3
2T1 4T2 6T3 14 NO A2
1L1 3L2 5L3 13 NO A1
L2L1 PEL3
L1 PEL2 L3
2
21
1
N
Connection of start/stop conditions
Start/stop
condition
Level switch
From motor starter
Safety switch
CONNECT EXTRA
START/STOP
CONDITIONS IN SERIES
First start/stop
condition
Last start/stop
condition
FA POWER UNIT
Flex-Auger Example
Max. 30° inclination

Table of Contents

Related product manuals