EasyManua.ls Logo

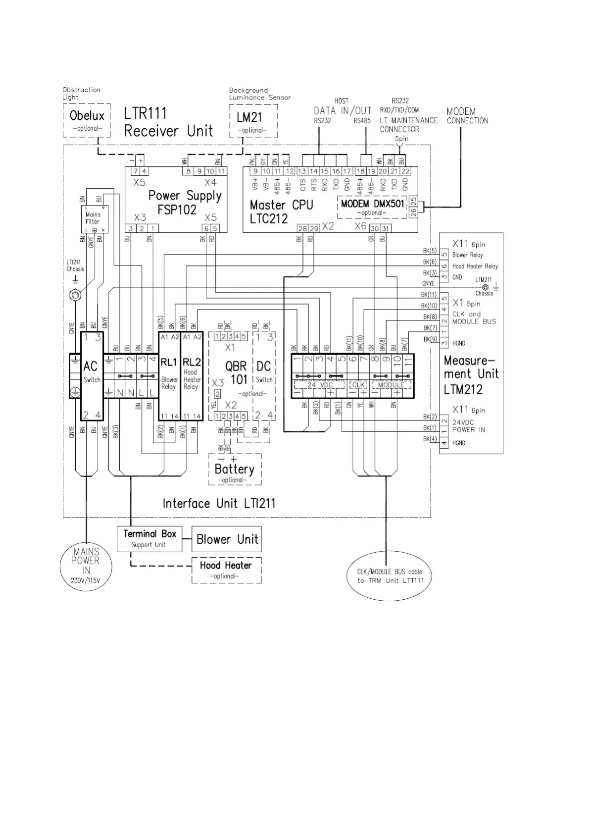
Vaisala LT31 - Figure 84 Receiver Unit LTR111 Wiring

Vaisala LT31
294 pages
Print Icon
To Next Page IconTo Next Page
To Next Page IconTo Next Page
To Previous Page IconTo Previous Page
To Previous Page IconTo Previous Page
Loading...
User's Guide ______________________________________________________________________
126 _________________________________________________________________ M210667EN-C
1104-107
Figure 84 Receiver Unit LTR111 Wiring

Table of Contents

Related product manuals