EasyManua.ls Logo

YASKAWA SGD7S

YASKAWA SGD7S
621 pages
To Next Page IconTo Next Page
To Next Page IconTo Next Page
To Previous Page IconTo Previous Page
To Previous Page IconTo Previous Page
Loading...
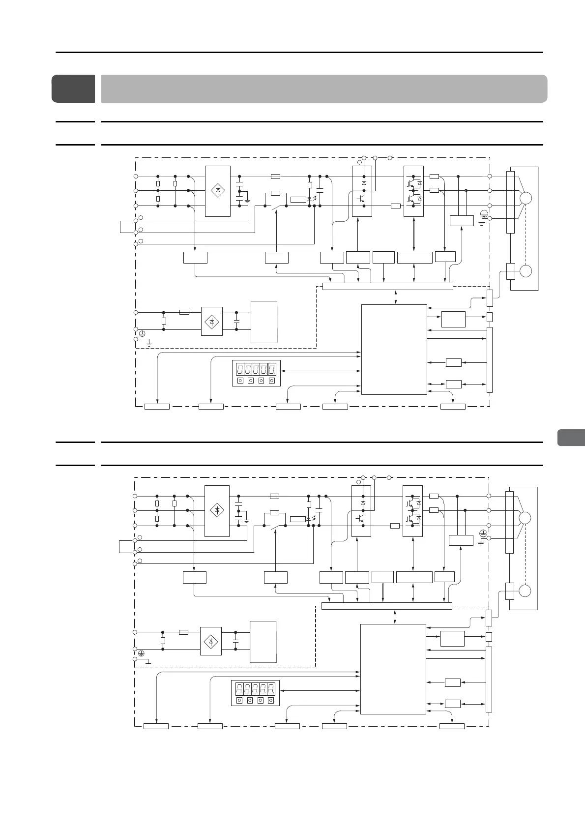
2.2 Block Diagrams
2.2.1 SGD7S-R70A, -R90A, and -1R6A
2-11
2
Selecting a SERVOPACK
2.2
Block Diagrams
2.2.1
SGD7S-R70A, -R90A, and -1R6A
2.2.2
SGD7S-2R8A
Processor
(PWM control, position/
speed calculations, etc.)
Control
power
supply
L1
B1/ B2 B3
L2
L3
1
2
L1C
L2C
U
V
W
Panel Operator
Digital Operator Computer
CN3
Option Module
CN11
Option Module
CN12 CN7
Current
sensor
Dynamic
brake circuit
CN2
Servomotor
ENC
Gate drive
Analog
voltage
converter
A/D
I/O
CN1
CN5
Encoder divided
pulse output
Analog monitor
output
Reference pulse input
Reference voltage
input
I/O signals
Voltage
sensor
Voltage
sensor
Varistor
Varistor
M
+
Relay
drive
+
CHARGE
-
+
-
-
Gate drive
overcurrent protection
Temperature
sensor
Safety function signals
CN8
Main
circuit
power
supply
Control
power
supply
L1
B1/ B2 B3
L2
L3
1
2
L1C
L2C
U
V
W
CN3CN11 CN12 CN7
CN2
ENC
A/D
I/O
CN1
CN5
M
CHARGE
-
+
-
-
CN8
Processor
(PWM control, position/
speed calculations, etc.)
Control
power
supply
Digital Operator ComputerOption Module Option Module
Current
sensor
Dynamic
brake circuit
Servomotor
Gate drive
Analog
voltage
converter
Encoder divided
pulse output
Analog monitor
output
Voltage
sensor
Voltage
sensor
Varistor
Varistor
Relay
drive
Gate drive
overcurrent protection
Temperature
sensor
Safety function signals
Main
circuit
power
supply
Control
power
supply
+
+
Panel Operator
Reference pulse input
Reference voltage
input
I/O signals

Table of Contents

Related product manuals