EasyManua.ls Logo

YASKAWA SGD7S

YASKAWA SGD7S
621 pages
To Next Page IconTo Next Page
To Next Page IconTo Next Page
To Previous Page IconTo Previous Page
To Previous Page IconTo Previous Page
Loading...
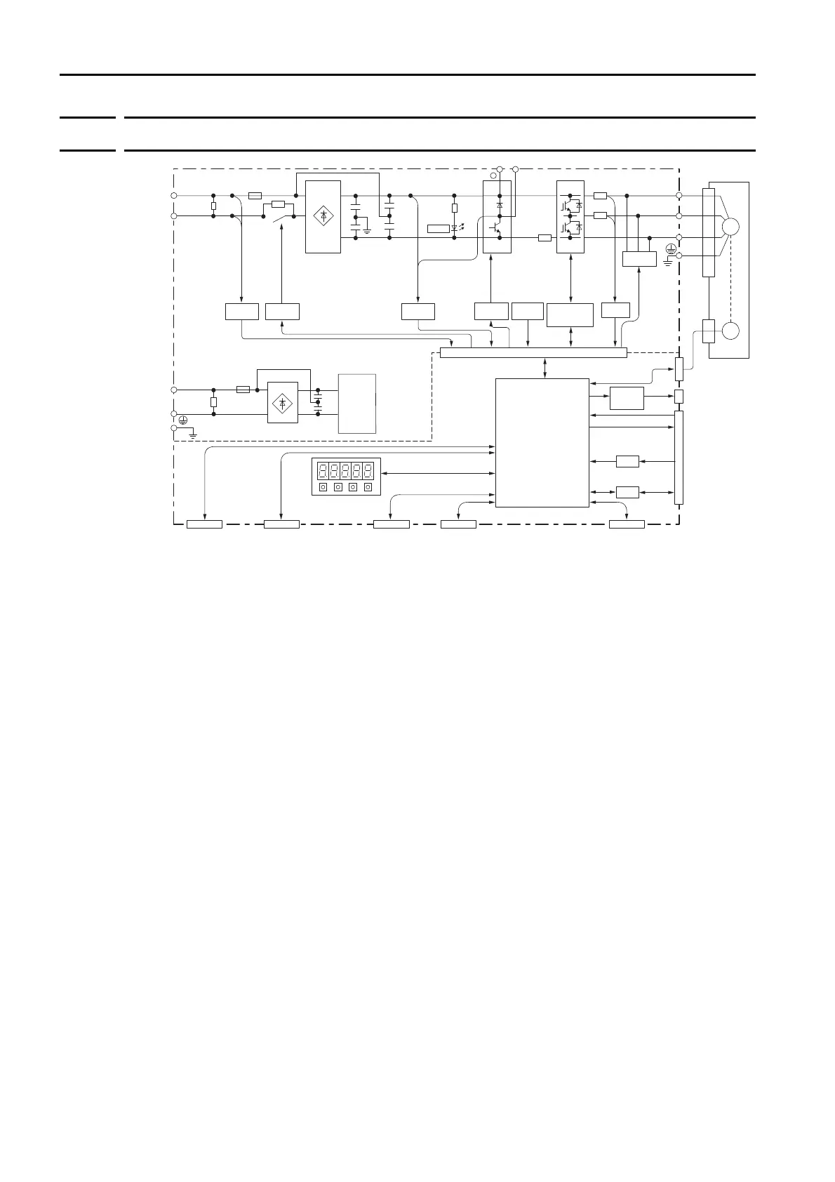
2.2 Block Diagrams
2.2.10 SGD7S-2R8F
2-18
2.2.10
SGD7S-2R8F
Processor
(PWM control, position/
speed calculations, etc.)
Control
power
supply
B1/ B2
L1C
L2C
U
V
W
Panel Operator
Digital Operator Computer
CN3
Option Module
CN11
Option Module
CN12 CN7
Current
sensor
Dynamic
brake circuit
CN2
Servomotor
ENC
Gate
drive
Analog
voltage
converter
A/D
I/O
CN1
CN5
Encoder divided
pulse output
Analog monitor
output
Reference pulse input
Reference voltage
input
I/O signals
Varistor
M
+
Gate drive
overcurrent
protection
Temperature
sensor
Safety function signals
CN8
Control
power
supply
+
L1
L2
Voltage
sensor
Voltage
sensor
Varistor
Relay
drive
+
+
CHARGE
Main
circuit
power
supply

Table of Contents

Related product manuals