EasyManua.ls Logo

YASKAWA SGD7W - Page 296

YASKAWA SGD7W
337 pages
Print Icon
To Next Page IconTo Next Page
To Next Page IconTo Next Page
To Previous Page IconTo Previous Page
To Previous Page IconTo Previous Page
Loading...
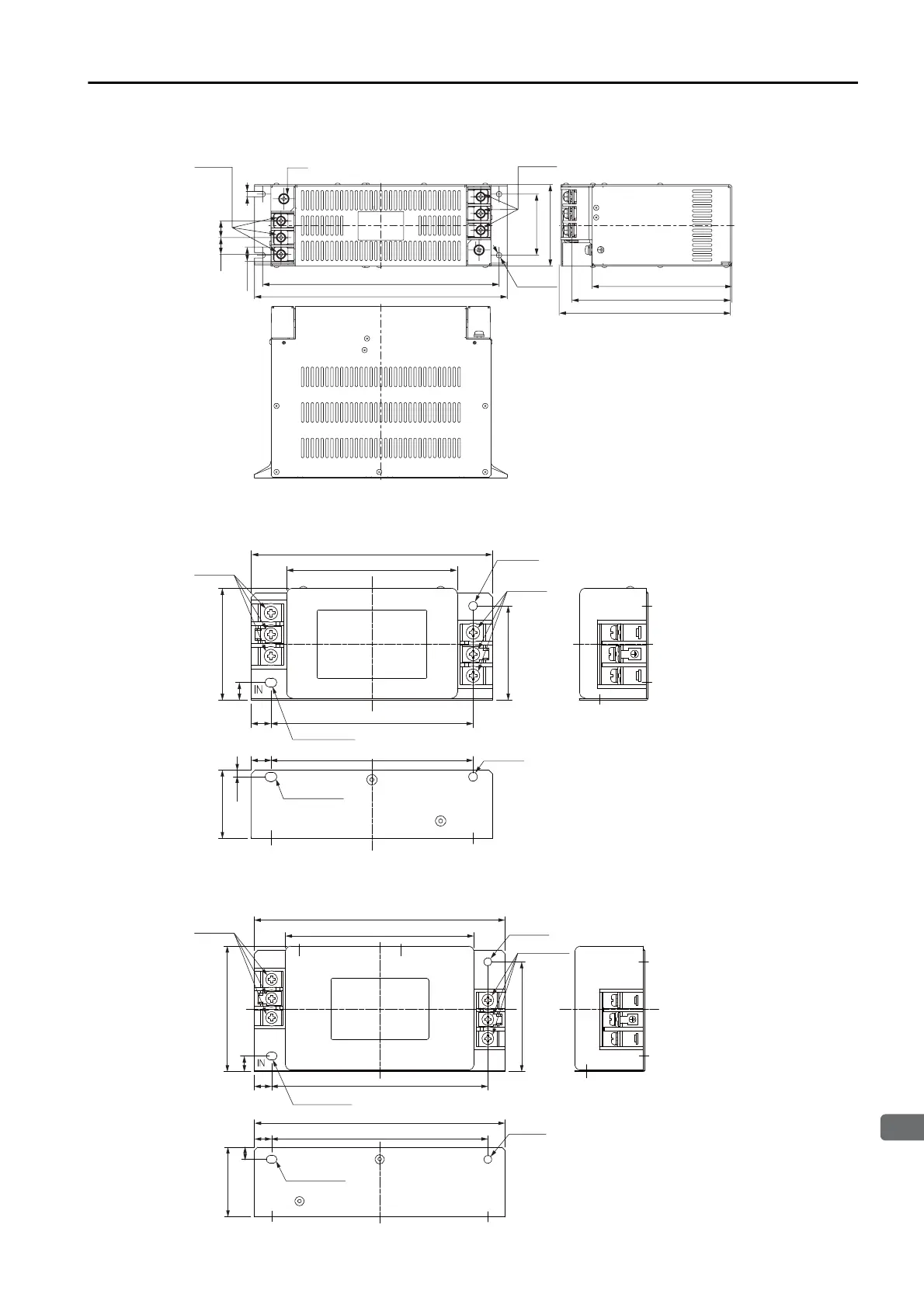
12.5 Noise Filter
12-27
12
SERVOPACK Peripheral Devices
Model: HF3100C-SZC
Model: HF2010A-UPF
Model: HF2020A-UPF, HF2020A-UPF-2BB, or HF2030A-UPF-2BB
6.5 dia.
3
×
M6
3
×
M6
M6
75
±
2
172
±
5
210
±
5
290
±
2
310
±
5
(196)
100
±
5
(20.5)
(17.5)
6.5
(20.5)
Unit: mm
57 ± 1
35 ± 1
3.5
123 ± 2
103 ± 1
103 ± 1
4.5 dia.
4.5 dia.
(87)
10
10
4.5 dia. × 6
4.5 dia. × 6
9
48 ± 1
3 × M4
3 × M4
Unit: mm
72 ± 1.5
40 ± 1
7
63 ± 1
144 ± 2
124 ± 1
144 ± 2
124 ± 1
4.5 dia. × 6
4.5 dia. × 6
4.5 dia.
4.5 dia.
(108)
10
10
9
3 × M4
3 × M4
Unit: mm

Table of Contents

Related product manuals