EasyManua.ls Logo

Buell P3 - Page 302

Buell P3
440 pages
Print Icon
To Next Page IconTo Next Page
To Next Page IconTo Next Page
To Previous Page IconTo Previous Page
To Previous Page IconTo Previous Page
Loading...
2007 Buell P3: Electric Starter 5-3
HOME
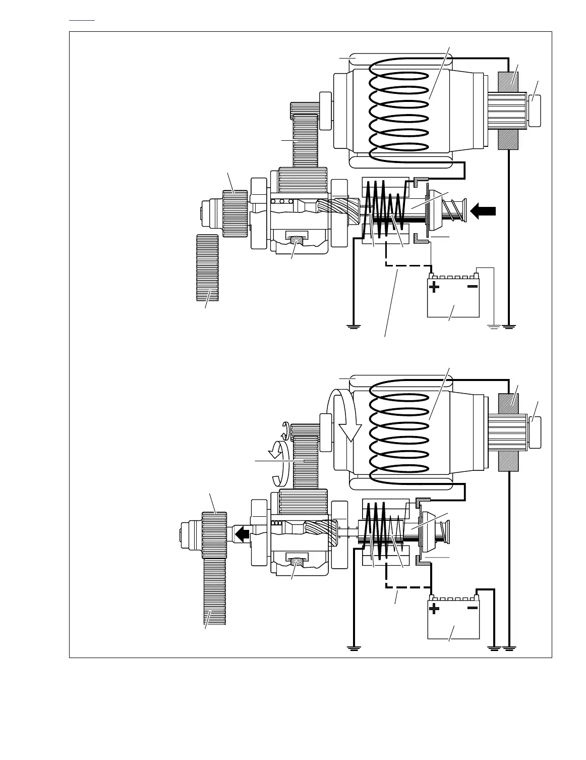
Figure 5-1. Starter Operation
1
2
3
4
5
6
7
8
10
9
12
13
11
1
2
3
4
5
6
7
8
10
9
12
13
11
a0191x5x
Starting circuit-see
wiring diagram
Starting
circuit see
wiring
diagram
1. Pinion gear
2. Idler gear
3. Field winding
4. Armature
5. Brush
6. Ball bearing
7. Solenoid plunger
8. Main solenoid contacts
9. Battery
10. Pull-in winding
11. Hold-in winding
12. Overrunning clutch
13. Clutch ring gear
Starter
during
cranking
Starter at moment
starter switch is closed

Table of Contents

Related product manuals