EasyManua.ls Logo

Case WX145 - Page 176

Case WX145
375 pages
Print Icon
To Next Page IconTo Next Page
To Next Page IconTo Next Page
To Previous Page IconTo Previous Page
To Previous Page IconTo Previous Page
Loading...
OPERATING THE MACHINE
3-65
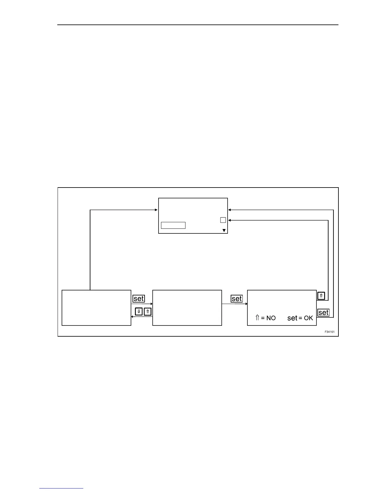
Position of the tens
By depressing button “set”, is highlighted with grey
background the first digit (tens position) for the
“OPENING”. By means of the arrow buttons you can
activate or deactivate this option and confirm the
selection with “set” button.
By confirming, the grey background sets to next
digit.
Position of the units
By means of the arrow buttons the digit can be mod-
ified, as described, and confirm the selection with
“set” button.
By confirming the units position, the first digit (tens
position) is highlighted on grey background for
“CLOSURE”. The setting procedure is repeated as
described.
When both digits for “CLOSURE” are confirmed,
you return to menu higher level.
A
50%
50%
50%
4x
50%
MACHINE
LEVELLING
BASIC SETTING
BUCKET
BUCKET SPEED BUCKET SPEED
OPENING:
CLOSING:
OPENING:
CLOSING:
Save changes?
91

Table of Contents

Other manuals for Case WX145

Related product manuals