EasyManua.ls Logo

Case WX145 - Use of the Rotary Cutter

Case WX145
375 pages
Print Icon
To Next Page IconTo Next Page
To Next Page IconTo Next Page
To Previous Page IconTo Previous Page
To Previous Page IconTo Previous Page
Loading...
SECTION 7
7-26
USE OF THE ROTARY CUTTER
BEFORE BEGINNING WORK
Check that the rotary cutter is securely locked with
the working attachment and that the hydraulic lines
are connected in the right way.
SWITCHING ON THE ROTARY CUTTER
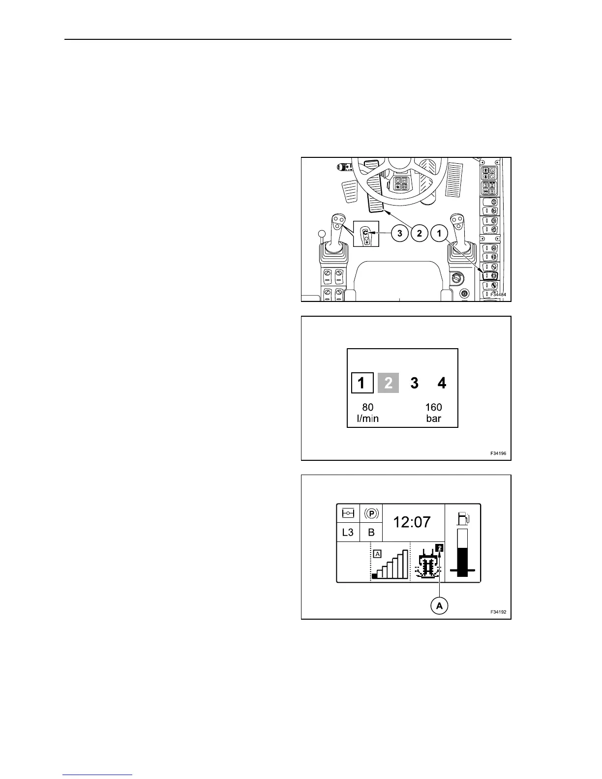
Preselect “Rotary cutter” with switch (1). Depress
the blank face of switch, switch backlighting is on.
Once the function is set, the display shows for 10
seconds the menu for the selection of 4 different
rotary cutters types. The rotary cutter can now be
selected, e.g. 3 instead of 2 and/or the pertaining
pressure and volume flow settings can be changed.
To quit the menu before the 10-second interval has
elapsed, depress one of the arrow buttons used for
setting the machine power levels.
If the machine is to work alternately with the rotary
cutter and with the hydraulic hammer, an electrically
operated shuttle valve automatically connects the
return-flow line of the rotary cutter with the hydraulic
reservoir.
The rotary cutter can operate to power rating levels
4-7. The electronic power unit activates the power
rating level that was active before engine shut off.
After returning to the main screen, the rotary cutter
symbol is displayed. The number corresponding to
selected cutter is visualized on the right upper cor-
ner (A).
Now the rotary cutter can be activated.
Pedal (2), is now controlling the “rotary cutter”.
Set the rotary cutter to working position, press pedal
forward (2). The further the pedal is depressed, the
higher the speed of the rotary cutter.
During work with the rotary, the pedal (2) can be
temporarily switched over to the “Adjusting cylinder”
function with push-button (3). The buzzer sounds a
warning as long as the push-button is kept
depressed.
SWITCHING OFF THE ROTARY CUTTER
Release pedal (2).
Disconnect switch (1). Depress the symbol face of
switch, switch backlighting is off.
46
ROTARY CUTTER 2
47
48

Table of Contents

Other manuals for Case WX145

Related product manuals