EasyManua.ls Logo

DAB MCE-55/P - Connexion des Capteurs

DAB MCE-55/P
Print Icon
To Next Page IconTo Next Page
To Next Page IconTo Next Page
To Previous Page IconTo Previous Page
To Previous Page IconTo Previous Page
Loading...
FRANÇAIS
120
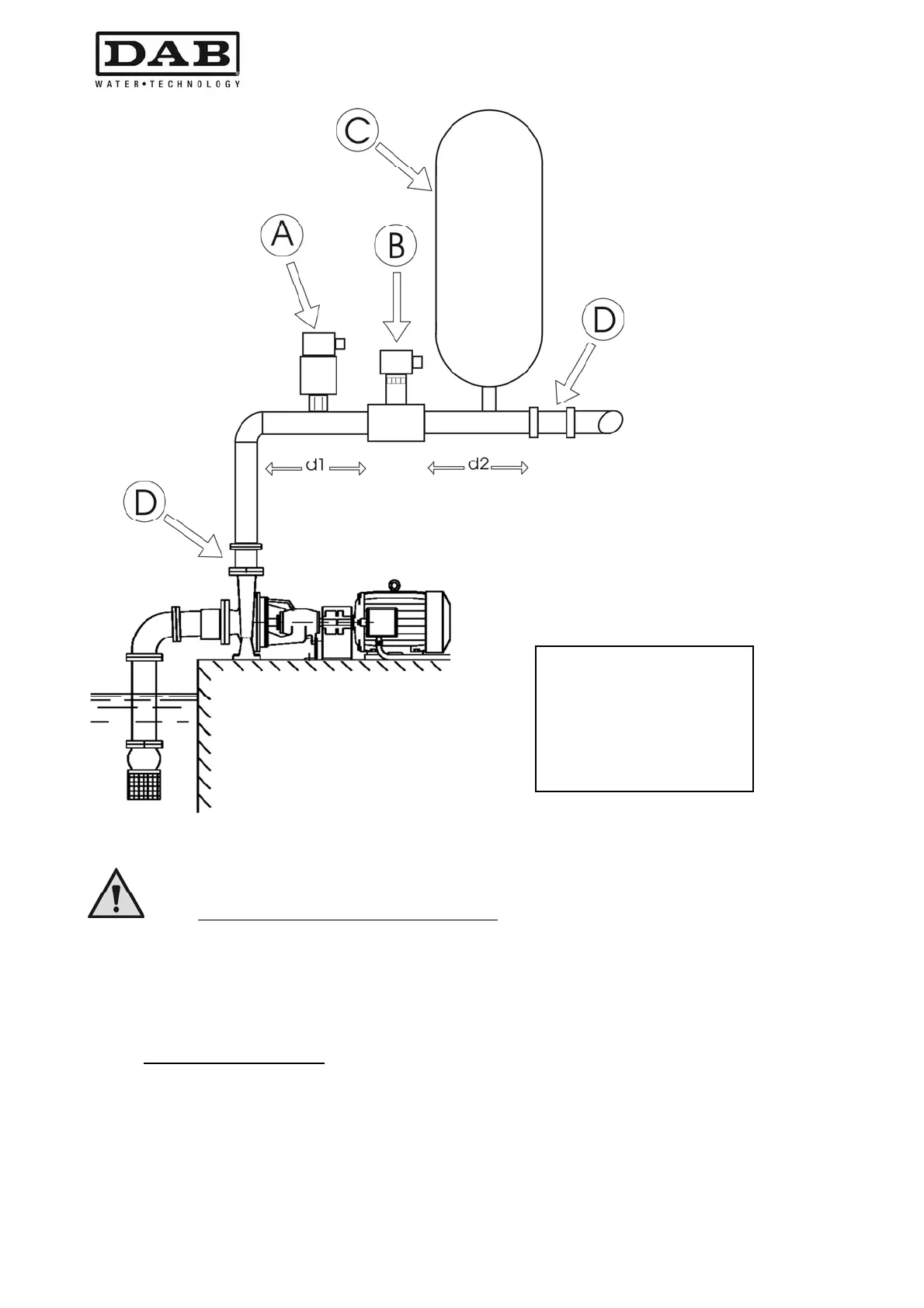
Figure 4: Installation hydraulique
Risque de corps étrangers dans la conduite : la présence de saleté à l’intérieur du fluide peut
obstruer les canaux de passage, bloquer le capteur de débit ou le capteur de pression et compromettre le
fonctionnement correct du système. Veiller à installer les capteurs de manière que ne puissent pas
s’accumuler sur eux des quantités excessives de sédiments ou des bulles d’air qui en compromettraient le
fonctionnement. En présence d’un tuyau où pourraient transiter des corps étrangers il peut être nécessaire
d’installer un filtre spécial.
2.2.3 Connexion des capteurs
Les bornes pour la connexion des capteurs se trouvent dans la partie centrale et sont accessibles en
enlevant le couvercle en plastique fixé avec quatre vis aux angles.. Les capteurs doivent être connectés
dans les entrées prévues à cet effet, identifiées par les sérigraphies « Press » et « Flow » voir Figure 5.
LÉGENDE
A Capteur de pression
B Capteur de débit
C Vase d'expansion
D Clapet antiretour
d1- d2 Distances d’installation
capteur de débit

Table of Contents

Related product manuals