EasyManua.ls Logo

DAB MCE-55/P - Σύνδεση Του Αισθητήρα Πίεσης

DAB MCE-55/P
Print Icon
To Next Page IconTo Next Page
To Next Page IconTo Next Page
To Previous Page IconTo Previous Page
To Previous Page IconTo Previous Page
Loading...
ΕΛΛΗΝΙΚΑ
499
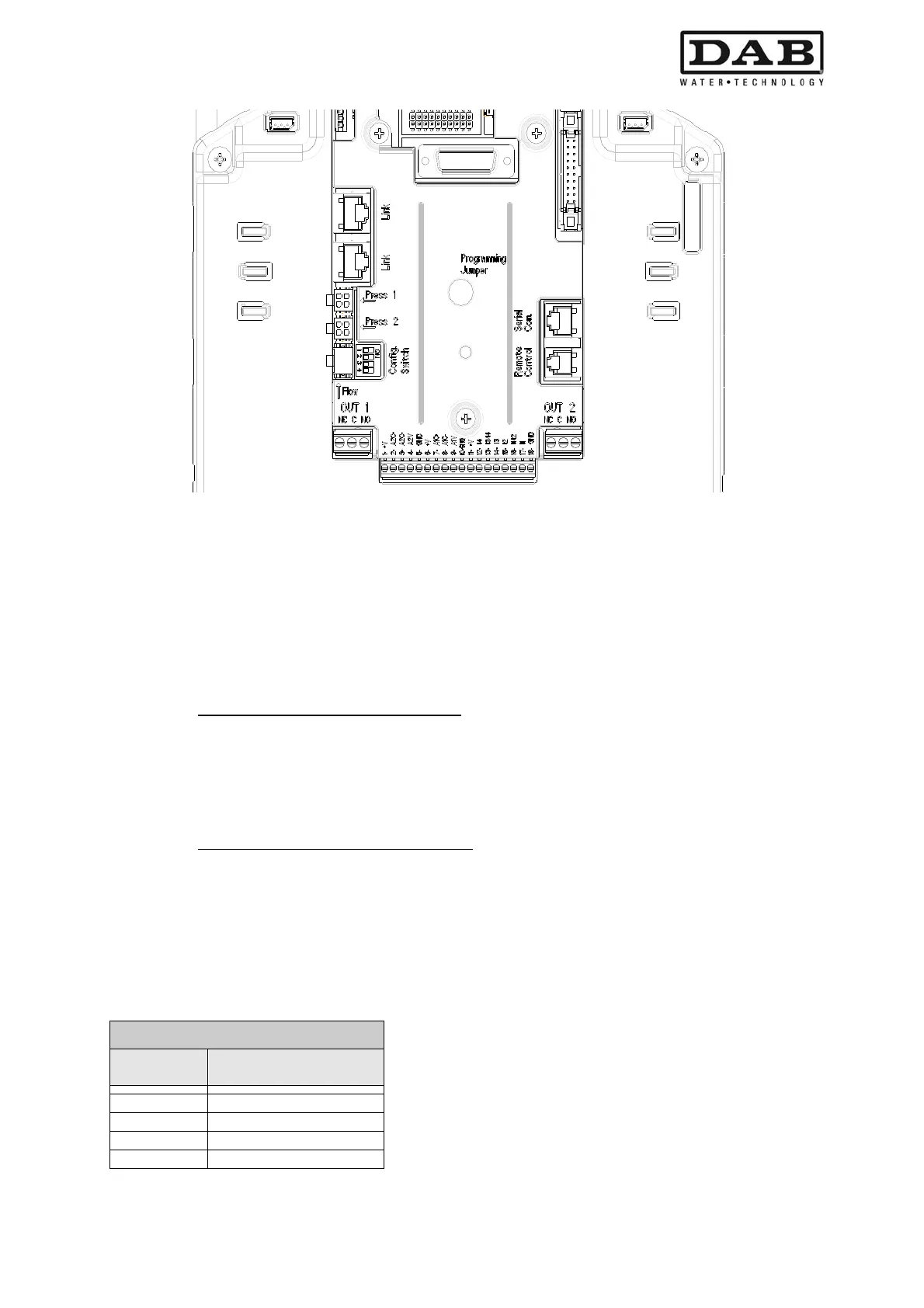
Σχήμα 5: Συνδέσεις
2.2.3.1 Σύνδεση του αισθητήρα πίεσης
Το inverter δέχεται δύο τύπος αισθητήρας πίεσης:
1. Αναλογιομετρικό
2. Σε ρεύμα 4 – 20 mA
Ο αισθητήρας πίεσης παρέχεται μαζί με το καλώδιό του και το καλώδιο και η σύνδεση στην κάρτα αλλάζει
ανάλογα με τον τύπο αισθητήρα που χρησιμοποιείται. Εκτός από ειδικές περιπτώσεις, ο αισθητήρας που
παρέχεται
είναι αναλογιομετρικού τύπου.
2.2.3.1.1 Σύνδεση Αναλογιομετρικού αισθητήρα
Το καλώδιο θα πρέπει να συνδέεται από τη μία πλευρά με τον αισθητήρα και από την άλλη με την κατάλληλη
είσοδο αισθητήρα πίεσης του inverter, που επισημαίνεται με την ένδειξη «Press 1», δείτε Σχήμα 5.
Το καλώδιο παρουσιάζει δύο διαφορετικά τερματικά με υποχρεωτική κατεύθυνση εισαγωγής: συνδετήρας για
βιομηχανικές εφαρμογές (DIN 43650) στην πλευρά του αισθητήρα και συνδετήρας
με 4 πόλους στην πλευρά
του inverter.
2.2.3.1.2 Σύνδεση αισθητήρα σε ρεύμα 4 - 20 mA
Ο αισθητήρας έχει δύο καλώδια και βγαίνει με επαφές για βιομηχανικούς συνδετήρες τύπου DIN 43650. Το
καλώδιο που παρέχεται για αυτό τον τύπο αισθητήρα έχει από τη μία πλευρά το βιομηχανικό συνδετήρα DIN
43650 και από την άλλη δύο τερματικά που ενώνονται με τα δύο καλώδια κόκκινου και λευκού χρώματος. Το
κόκκινο τερματικό σηματοδοτεί
την είσοδο του αισθητήρα, και το λευκό την έξοδο. Τα δύο τερματικά
εισάγονται στην πλακέτα ακροδεκτών των εισόδων J5 και συνδέονται στην κάρτα όπως περιγράφεται στο
Σχήμα 6, με τη βοήθεια ενός βραχυκυκλωτήρα. Οι ακροδέκτες 7 και 8 είναι αντίστοιχα είσοδος και έξοδος του
σήματος στο ρεύμα. Για τη χρήση αυτής της εισόδου με αισθητήρα
δύο συρμάτων θα πρέπει να συνδεθεί η
τροφοδοσία και γι' αυτό είναι απαραίτητη η χρήση και των ακροδεκτών 10 και 11 και του βραχυκυκλωτήρα.
Συνδέσεις του αισθητήρα 4 – 20 ma
Ακροδέκτης
Καλώδιο προς
σύνδεση
7 λευκό
8 βραχυκυκλωτήρας
10 βραχυκυκλωτήρας
11 κόκκικο
Πίνακας 4: Σύνδεση του αισθητήρα πίεσης 4 - 20 mA

Table of Contents

Related product manuals