EasyManua.ls Logo

DAB MCE-55/P - Aansluiting Van de Sensoren

DAB MCE-55/P
Print Icon
To Next Page IconTo Next Page
To Next Page IconTo Next Page
To Previous Page IconTo Previous Page
To Previous Page IconTo Previous Page
Loading...
NEDERLANDS
336
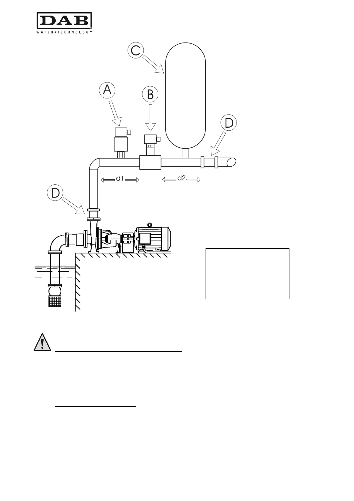
Afbeelding 4: hydraulische installatie
Gevaar voor vreemde voorwerpen in de leiding: door de aanwezigheid van vuil in de vloeistof kunnen
de doorstroomkanalen verstopt raken, kan de debietsensor of de druksensor geblokkeerd raken en kan de
correcte werking van het systeem in gevaar worden gebracht. Let op dat u de sensoren zodanig installeert dat
er zich geen overmatige hoeveelheden aanslag of luchtbellen op kunnen verzamelen, die een goede werking
ervan in de weg zouden staan. Bij leidingen waar vreemde voorwerpen in terecht kunnen komen, kan het nodig
zijn een speciaal filter te installeren.
2.2.3 Aansluiting van de sensoren
De kabelafsluitingen voor de aansluiting van de sensoren bevinden zich in het midden en zijn toegankelijk na
verwijdering van het plastic deksel dat met vier schroeven op de hoeken bevestigd is. De sensoren moeten
worden verbonden met de hiervoor bestemde ingangen met de opschriften "Press" en "Flow" zie Afbeelding 5.
LEGENDA
A Druksensor
B Debietsensor
C Expansievat
D Terugslagklep
d1- d2 Installatieafstanden
debietsensor

Table of Contents

Related product manuals