EasyManua.ls Logo

DAB MCE-55/P - Conexión del Sensor de Presión; Tabla 4: Conexión del Sensor de Presión 4 - 20 Ma

DAB MCE-55/P
Print Icon
To Next Page IconTo Next Page
To Next Page IconTo Next Page
To Previous Page IconTo Previous Page
To Previous Page IconTo Previous Page
Loading...
ESPAÑOL
229
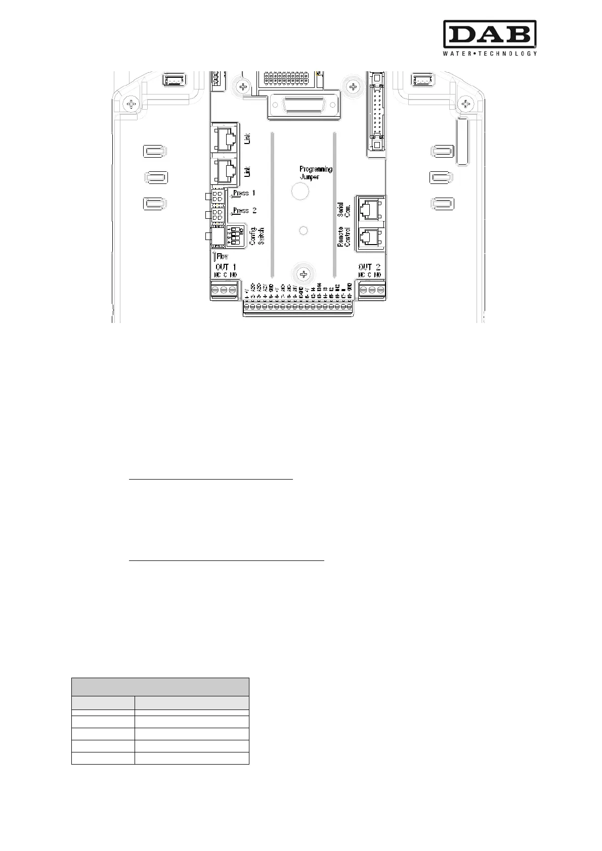
Figura 5: Conexiones
2.2.3.1 Conexión del sensor de presión
El inverter acepta dos tipos de sensores de presión:
1. Ratiométrico
2. De corriente 4 - 20mA
El sensor de presión se entrega con su cable; el cable y la conexión en la tarjeta cambia según el tipo de
sensor utilizado. El sensor suministrado, salvo solicitudes en contrario, es de tipo ratiométrico.
2.2.3.1.1 Conexión de un sensor Ratiométrico
El cable debe conectarse de un lado al sensor y del otro lado a la entrada del inverter, identificada por la
sigla "Press 1", véase la Figura 5.
El cable tiene dos terminales diferentes con dirección de conexión obligada: conector para aplicaciones
industriales (DIN 43650) del lado del sensor y conector de 4 polos del lado del inverter.
2.2.3.1.2 Conexión del sensor de corriente 4 - 20 mA
El sensor tiene dos hilos y se suministra con los contactos para conectores industriales DIN 43650. El cable
suministrado para este tipo de sensor tiene de un lado el conector industrial DIN 43650 y del otro dos
terminales engastados en los cables de color rojo y blanco. El terminal rojo identifica la entrada del sensor y
el blanco identifica la salida. Los dos terminales se conectan a la regleta de las entradas J5 y a la tarjeta, tal
como se muestra en la Figura 6 con la ayuda de un puente de conexión. Los bornes 7 y 8 son la entrada y
la salida respectivamente de la señal de corriente. Para utilizar esta entrada con sensor de dos hilos es
necesario conectar la alimentación y, a tal fin, es necesario utilizar también los bornes 10 y 11 y el puente
de conexión.
Conexiones del sensor 4 – 20 ma
Borne Cable a conectar
7 blanco
8 puente
10 puente
11 rojo
Tabla 4: Conexión del sensor de presión 4 - 20 mA

Table of Contents

Related product manuals