EasyManua.ls Logo

GE Vivid E9 - Page 538

GE Vivid E9
802 pages
Print Icon
To Next Page IconTo Next Page
To Next Page IconTo Next Page
To Previous Page IconTo Previous Page
To Previous Page IconTo Previous Page
Loading...
GE H
EALTHCARE
D
IRECTION
GA091568, R
EVISION
5 VIVID E9 S
ERVICE
M
ANUAL
8 - 204 Section 8-8 - Main Console parts replacement
8-8-7-2 Main Cable removal procedure (cont’d)
The Cable Chain is attached with two screws in the UI end and one screw in the other end.
1.) Remove two screws from the Cable Chain’s anchor point at the lower UI.
2.) Remove one screw on the other end of the Cable Chain.
3.) Remove the Main Cable, including the Cable Chain away from the VIVID E9.
8-8-7-3 Main Cable installation procedure
1.) Route the Main Cable, including the Cable Chain into its position.
2.) Install the two (2x) screws used to attach the Cable Chain to the UI.
3.) Install the screw at the other end of the Cable Chain.
4.) Connect the D-SUB to J21 on the BEP I/O.
5.) Connect the DVI to J22 on the BEP I/O.
6.) Connect two (2x) cables to the XYZ Control box.
7.) Route and connect the two XY cables.
8.) Connect the HDMI connector to the Bulkhead.
9.) Install the Cable Clamps.
10.)Connect the cable to the Z-switch.
11.)Power up VIVID E9.
12.)Verify that the XYZ functions operate as they should.
13.)Power down VIVID E9.
14.)Install all covers.
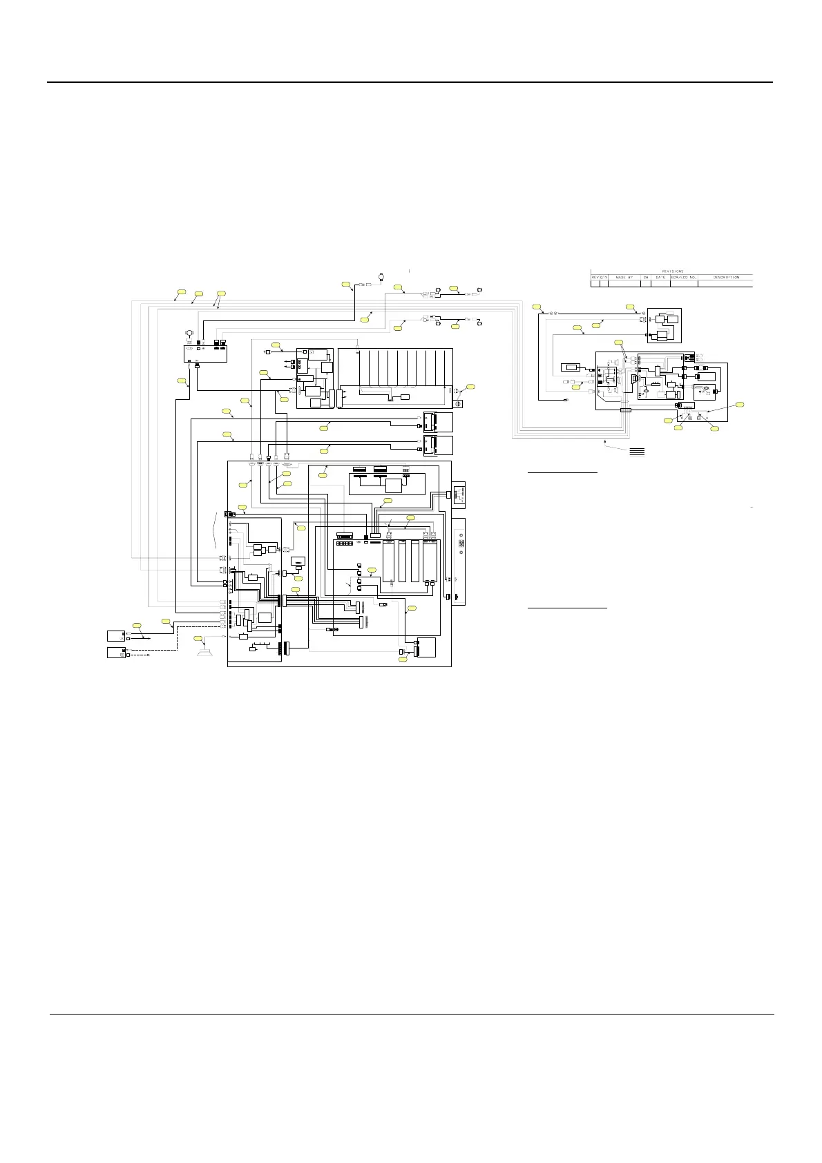
Figure 8-210 VIVID E9 Cable Diagram
9
9
X%7;
027+(5%2$5'
%(3
 E7
'&
92/7$*(6
6$7$
'&'&
&219(57( 56
6(48 (1&(
/2*,&
99VWE\
36B21
9B2.
$&B)$,/
99
99VWE\
%(33:5
6833/<
0$,1
32:(5
9
32:(5
86%
/('¶6
36B213:52.
9 99
9 9VWE\
$
)5217
3$1(/
02'8/(
;3&,(;35(66
63$5(3&,(;35(66[
',*,7$/
9,'(2&$5'
'9,,,1
3&,
'95
237,21$/
3&,(;35(66
'9,,2 87
$8',2, 1
3&,
63$5(3&,

0E7
027+(5%2$5'
$1$/2* 9,'(2
'9,'
5;
'9,'
7;
'9,'
7;
86%+8%
86%+8%
$8',2/
$8',25
(;786%
(;786%
'9,,287
$8',2
$03
$8',2
$03
86%0LFU R
&RQWUROOHU
,23RUWV
93'
86%
86%
86%
%6&$1
VWE\
9
/5
$8',2
287
212))6:
3:5/('
,2%2$5 '
9
9
*),
$8',2
5(/$<
5;
5;
*7;
*7;
*7;
'5;
'5;
'5;
*),
%$&.3/$1(
$
%6&$1
*),$8',2
'02725 '5,9(
'02725
&175/
+%5,'*(
'&'&
&219(57( 56
32:(5
)$&725
&255(&7,21
,62/$7,21
$1'
'&+($'
9$&
,19(57(5
&21752/
&$5'5$&.
)52*
%5$.(6
;<=&21752//(5
9 9 9
9
'9,$
-
-
-
-
-
-
-
-
-
-
-
-
VWE\
-
-
-
-
-
-
-
-
-
5($5
3$1(/
,11(5
/()7%5$.(
0$,132:(5683 3/<
38/6(5
92/7$*(6
86%+8%
-
-
-
237,21.(<
=02725
72
35,17(56
5(*
9
9
3$7,(17,2
237 ,21$ /
86%
233$1(/
86%
5(*
99
9
9
9,'(2
&17/
)/$7
6&5((1
+9,19
&21752 //(5%2$5 '
%8/.+($'
%2$5'
9
86%
86%
$8',2
X3
9
.(<%2$5'
86%
+8%
9
86%
21
2))

/&'
9
+9,19
86%
83'1/2&.
5(/($6 (
%877216
75$&.%$//
6:,7&+
%2$5'
9
9
*(/:$50(5
237,21$/
7(03
&21752/
86%WR
56
9
'&'&
9
56
0$,1/&'',63/$<
%8/.+($'
3/$7(
,11(5
5,*+7%5$.(
287(5
5,*+7 %5$.(
287(5
/()7%5$.(
9
'9,9, '(2
932:(5$8',2
86%) 25233 $1(/
86%) 259,'( 22172 8&+3$1 (/
83'1 %5$.( 5(/($6( 6:,7&+ (6
0$,1&$% /(
&2/25
35,17( 5
)8785(
86%
3:5
720$,1
3:5
6833/<
0(025<6 7,&.
86%
9,'(2
728&+
&1
'9'
6$7$6$7$ 3:5
6$7$
6$7$
6$7$
'9'
237,21
6$7$6$7$3 :5
+$5'
'5,9(
6$7$ 6$7$3:5
&1
86%

3&,
(;35(66[
&(17(5
$8',22 87
$8',2,1
/5&(17(5$8',2287
212))6:
3:5/('
;<
/2&.
02725
%:
35,17( 5
237,21$/
86%
3:5
720$,1
3:5
6833/<
&:352%(
&211(&7,21
237,21$/
%
0
0
+
$
3
4
,
.
.
'
6
(
*
-
1



,)12
'95
,)12
'95
9
5
&
&
,7(03$57180%(5 '(6&5,37,21
$ & 0$,132:(5&25' 86&$1$'$&(8523(
% *$ )52*%5$.(&21752/XVHG
& *$ )52*%5$.($50XVHG
'  0$,1&$%/($66(0%/<
'  0$,1&$%/(±32:(5$8',2
'  0$,1&$%/(±9,'(2
'  0$,1&$%/(±;<=6:,7&+6,*1$/6
'  0$,1&$%/(±86%XVHG
(  9,'(2+'0,'9,&$%/( /&'
)  32:(586%&$%/( /&'
*  86%233$1(/72%8/.+($'XVHG
+  86%&$%/( 0$,132:(56833/<
, *$ 32:(5&$%/(±%(39
-  3&,(;35(66&$%/(
.  32:(5&$%/(±'9'XVHGLI'9'
/  86%&$%/(±;<=&21752//(5
0  6$7$&$%/(±'9'XVHGLI'9'
1  %(372&$5'5$&.%$&.3/$1(&$%/(
3 *$ $8',2&$%/( 68%:22)(5
4  86%&$%/(±%:35,17(5
5  32:(5&$%/(±%:35,17(5
6 *$ &:&211(&7255,%%21&$%/(
7 *$ ;</2&.
8 *$ 83'2:1/2&.%877216XVHG
9 *$ /2&.%877216XVHG
:  6$)(7<*5281':,5(/&'$50XVHG
;  86%%8/.+($'72:/$1
(;7(51$/&$%/(6$1'+$51(66(6
,7(03$57180%(5 '(6&5,37,21
  %(332:(5+$51(66
  027+(5%2$5'+$51(66
  )52173$1(/+$51(66
  3&,(;35(66%8/.+($'
  6$7$%8/.+($'-
  6$7$%8/.+($'-
  6$7$+$5''5,9(
  6$7$'9586('21/<,)'95,167$//('
  32:(5+$5''5,9(9,'(2&$5'
  '9,)/(;0$,1<**'5$6,/
  '9,)/(;'95-803(5<**'5$6,/86('21/<,)'95,167$//('
  1(7:25.3$7&+&$%/(&$7
%(3$66(0%/<&$%/(6$1'+$51(66(6
%
9
9
,&
93'
,&
&1
&1
&1
$7;
-
$7;
-
-
-
- -
-
7
%87721,)
8
8
9
)
::
'
'
9
9
32:(5
'9'
+267
3
3
3
3
3
3

:,5( /(6 6
/
'
-
-
-
-
-
-
-
-
-
3
3
/
5
;
'9'$'$3 73:$ '9 '$'$37 3:$
86%
'92,*+7 -81 -$1'-6:$33('

Table of Contents

Other manuals for GE Vivid E9

Related product manuals