EasyManua.ls Logo

GRAPHTEC WR1000 - Circuit Diagram: Amp Mother Board

GRAPHTEC WR1000
126 pages
Print Icon
To Next Page IconTo Next Page
To Next Page IconTo Next Page
To Previous Page IconTo Previous Page
To Previous Page IconTo Previous Page
Loading...
WR1000-UM-251-01-9380
8-5
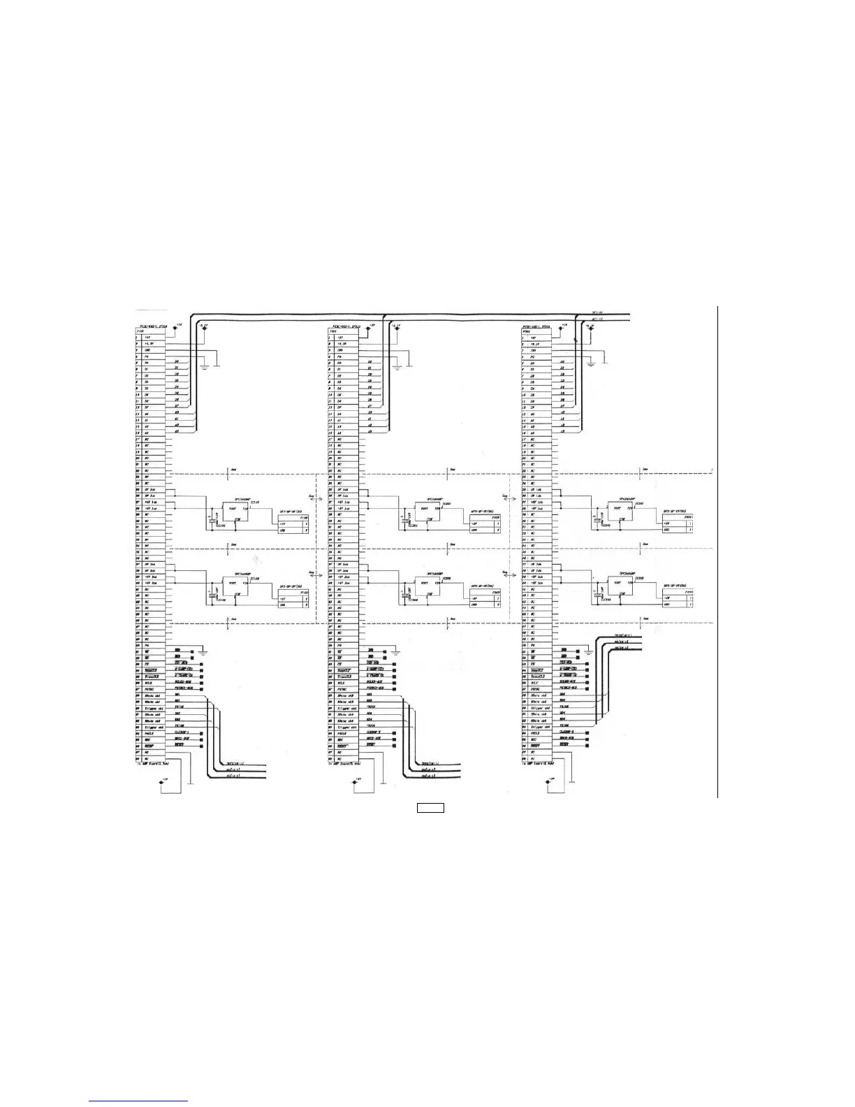
Circuit Diagram: Amp Mother Board (WR1000-16) [1/5]
Fig. 8-5

Table of Contents