EasyManua.ls Logo

GRAPHTEC WR1000 - Page 27

GRAPHTEC WR1000
126 pages
Print Icon
To Next Page IconTo Next Page
To Next Page IconTo Next Page
To Previous Page IconTo Previous Page
To Previous Page IconTo Previous Page
Loading...
WR1000-UM-251019380 3 18
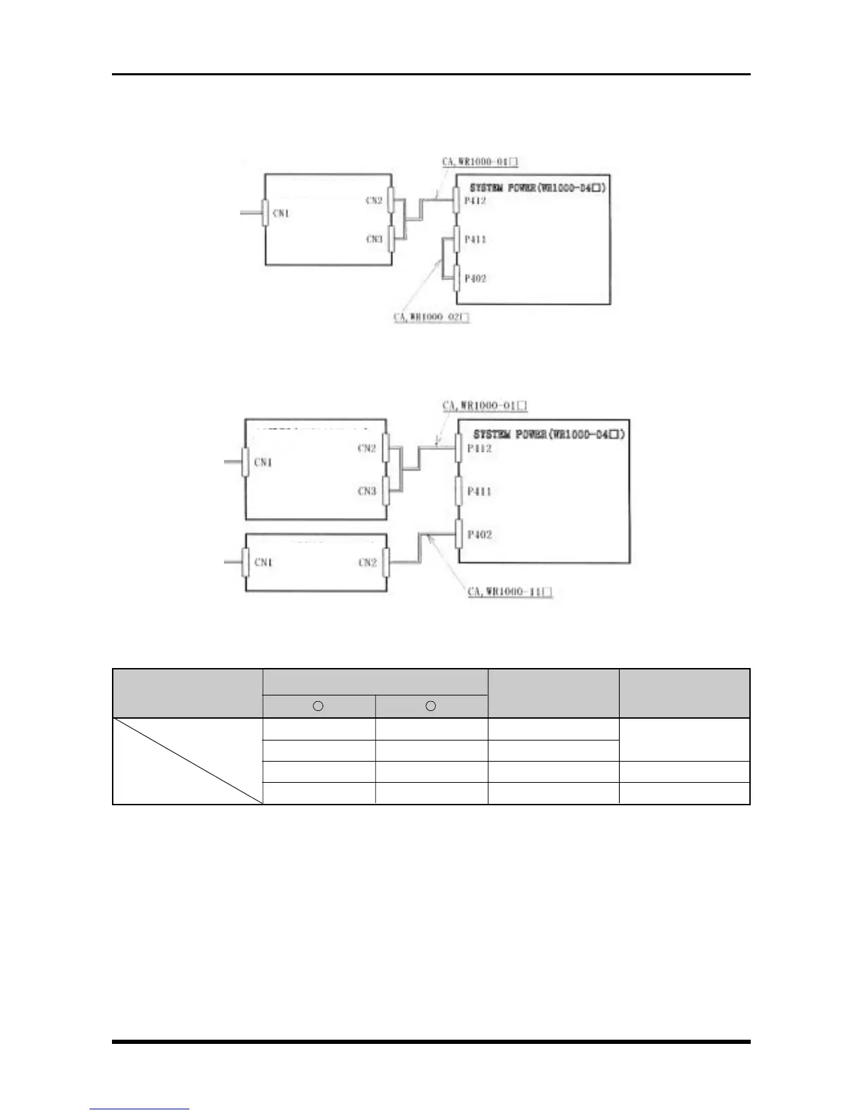
3. DISASSEMBLY AND REASSEMBLY
(2) Voltage check
With the 8-channel model
Fig. 3-4-2
With the 16-channel model
Fig. 3-4-3
Table 3-4-2. Voltage check
Connector pin no.
Checkpoint
Measurement range Remarks
+
-
TP1 TP2 +21.6 to +26.4 V +24 V
TP3 TP2 +11.4 to +12.6 V +12 V
TP4 TP2 +4.9 to +5.1 V +5 V
TP6 TP2 +3.46 to +3.12 V +3.3 V
AC input
AC input
AC input
AC power (ZWS150PF-24)
AC power (ZW150PF-24)
16-channel AC power (ZWS50-24)

Table of Contents