EasyManua.ls Logo

HIMA H41q - Page 240

Default Icon
522 pages
Print Icon
To Next Page IconTo Next Page
To Next Page IconTo Next Page
To Previous Page IconTo Previous Page
To Previous Page IconTo Previous Page
Loading...
F 3332 (0524)
234
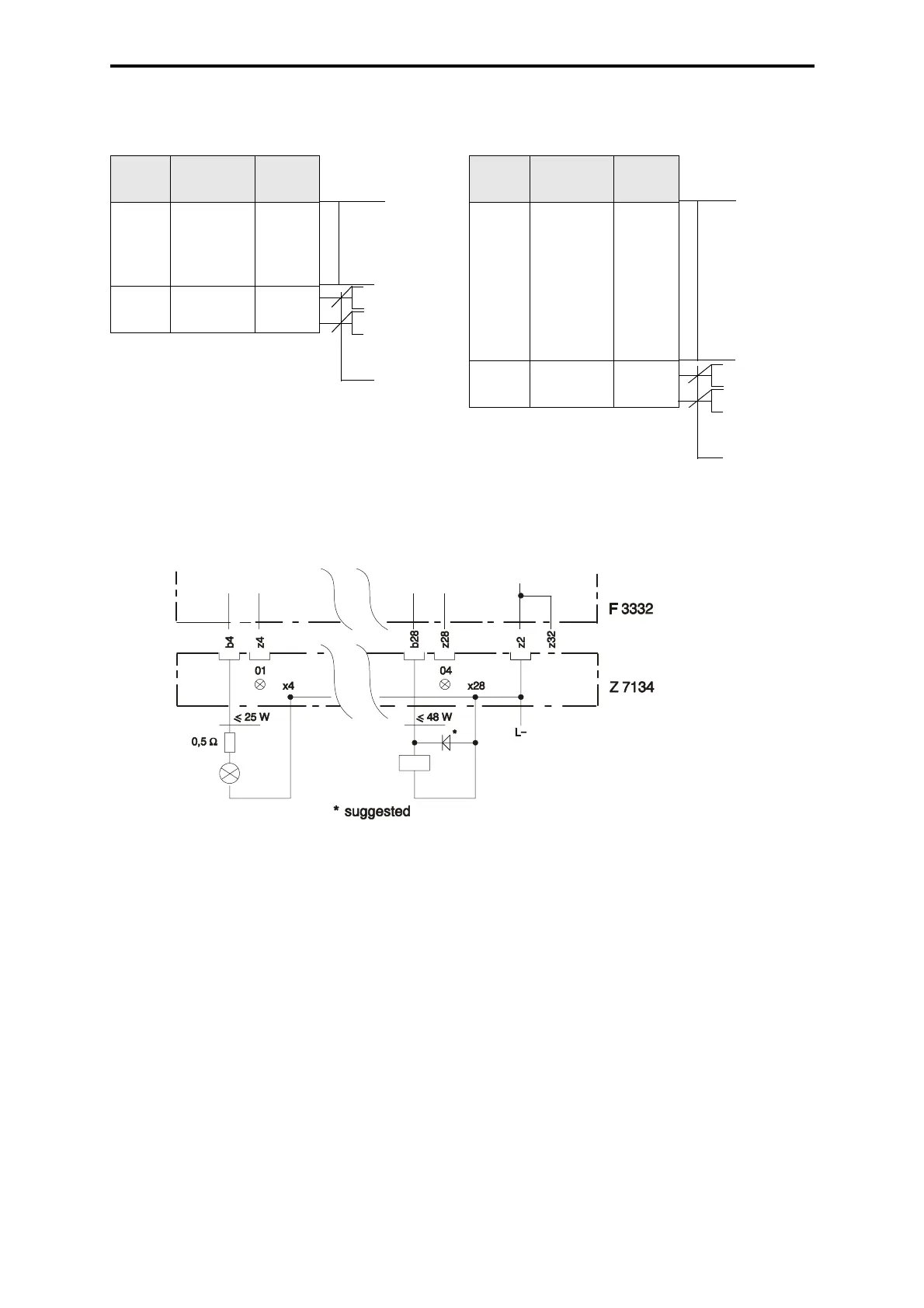
Figure 2: Lead markings of the cable plugs
Figure 3: 2-pole connection
Planning notes
at the same time only 2 channels may be operated with the max. load (2 A). If the load is
up to max. 1 A, all channels may be operated at the same time.
max. 10 output modules with nominal load may be used in one I/O subrack
can be used in parallel without external diodes
Lead marking of the cable plug
Z 7134 / 3332 / C.. / P2
(2-pole connection)
Chan-
nel
Connec-
tion
Color
1
2
3
4
b4
x4
b8
x8
b24
x24
b28
x28
BN
WH
YE
GN
PK
GY
RD
BU
L–
L+
z2
z12
BK
RD
Cable
LiYY 8 x
1.5 mm
2
Flat pin
plug
2.8 x
0.8 mm
2
q = 1 mm
2
l = 750 mm
Lead marking of the cable plug
Z 7134 / 3332 / C..
Chan-
nel
Connec-
tion
Color
1
2
3
4
b4
b8
b24
b28
WH
BN
GN
YE
L–
L+
z2
z12
BK
RD
Flat pin
plug
2.8 x
0.8 mm
2
q = 1 mm
2
l = 750 mm
Cable
LiYY 4 x
1.5 mm
2

Table of Contents