EasyManua.ls Logo

Honeywell 5704 - Page 180

Honeywell 5704
191 pages
Print Icon
To Next Page IconTo Next Page
To Next Page IconTo Next Page
To Previous Page IconTo Previous Page
To Previous Page IconTo Previous Page
Loading...
8-11
MAN0448_Issue 13_01-2010 5704 Control System
005704-M-5001 A03249
CHAPTER 8 - SPECIFICATION
Weight: (including Engineering Card and DC Input Card)
16 Way Front Access: 5.8kg.
16 Way Rear Access: 4.1kg.
8 Way Front Access: 3.9kg.
8 Way Rear Access: 2.8kg.
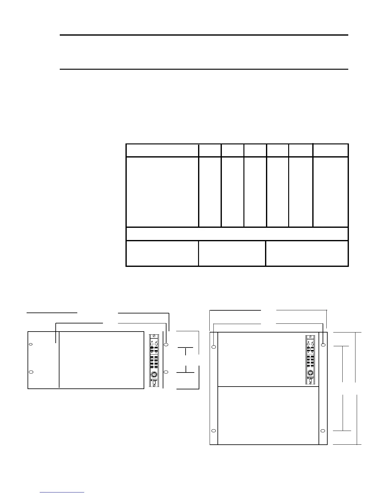
TableofSizes(mm)
Rack Assembly A B C D E Depth
8 Way Rear Access 279.4 261.9 57.0 37.8 132.5 287.6
8 Way Front Access 279.4 261.9 190.5 37.8 266.0 217.6
16 Way Rear Access 482.6 465.1 57.0 37.8 132.5 287.6
16 Way Front Access 482.6 465.1 190.5 37.8 266.0 217.6
Panel Cutout Clearance
8 Way Width: 247 Height as column E
16 Way 450 as column E
A
B
C E
D
A
B
C E
D
(holes 6mm
diameter)

Table of Contents

Related product manuals