EasyManua.ls Logo

Honeywell Farenhyt Series - NIC Wiring Options; 1: Fiber Loop Modules

Honeywell Farenhyt Series
176 pages
To Next Page IconTo Next Page
To Next Page IconTo Next Page
To Previous Page IconTo Previous Page
To Previous Page IconTo Previous Page
Loading...
IFP-300 Series Manual — P/N LS10145-001SK-E:C 4/6/2022 65
SK-NIC Wiring Options Networking
5.3 SK-NIC Wiring Options
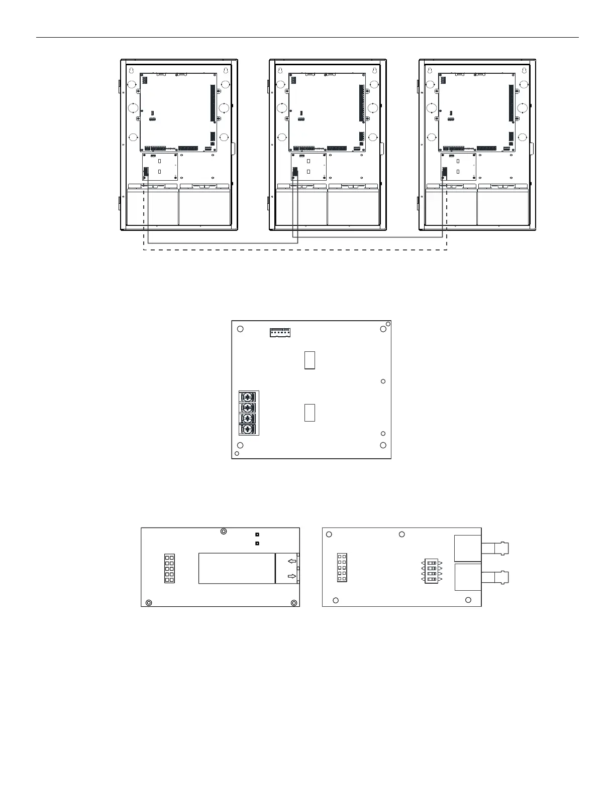
Networking a group of IFP-300 panels requires the use of a network interface card with each panel. The SK-NIC connects to other net-
worked units using unshielded, twisted-pair wiring or fiber-optic cable.
5.3.1 Fiber Loop Modules
Two types of fiber- optic modules are available to use to transmit and receive communication with the SK-NIC. For more information, see
the SK-FML/ SK-FSL Installation Instructions P/N LS10178-001SK-E.
The SK-FML (Fiber-Optic Multi-Mode) and SK-FSL (Fiber-Optic Single-Mode) are plug-in fiber loop modules. The two types of fiber optic
modules are used as one channel to transmit or receive communications with the SK-NIC, ARCNET communication circuit.
The following describe the two types of fiber optic modules.
The SK-FML is a fiber module that allows the multi-mode fiber to network between nodes.
The SK-FSL is a fiber module that allows the single-mode fiber to network between nodes.
FACP FACP FACP
SK-NIC SK-NIC SK-NIC
Class B wiring
Class A wiring
Figure 5.2 Internal SK-NIC Wiring Option
Figure 5.3 SK-NIC Network Interface Card
LED1
LED2
RX
TX
SK-FSL Single-Mode Fiber Module SK-FML Multi-Mode Fiber Module
Figure 5.4 Types of Fiber Loop Modules

Table of Contents

Other manuals for Honeywell Farenhyt Series

Related product manuals