EasyManua.ls Logo

LeeBoy 8510E - Main Harness (1 of 6)

LeeBoy 8510E
444 pages
Print Icon
To Next Page IconTo Next Page
To Next Page IconTo Next Page
To Previous Page IconTo Previous Page
To Previous Page IconTo Previous Page
Loading...
MAIN HARNESS (1 OF 6)
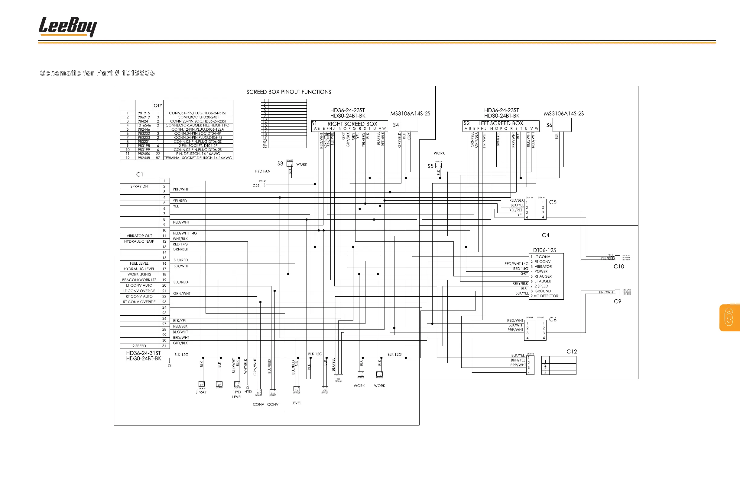
Schematic for Part # 1018805
Figure 6-1. Main Harness (1 of 6)
RT REAR
LIGHT
BEACON
RT
AUTO
LT
AUTO
GND
LT REAR
LIGHT
HORN
GEN
RT FRONT
LIGHT
LT FRONT
LIGHT
DOWN
GRN
PRP
BLU
RED
WHT
WHT
BRN
BLU
GRN
RED
RED
TOPCON
POWER
LOWER MANIFOLD
B
A
C
A B C D
RT PILE
HEIGHT
A B C D
LT PILE
HEIGHT
TEMP
BLU
GRN
BRN
RT TOPCON
LT TOPCON
PRP
B
A
A
B
RT TOW
LT TOW
GRN
PRP
RED
WHT
RED
RED
WHT
RED
WHT
PRP
RED
BRN
BRN
RED
PRP
BRN
WHT
GRN
BLU
RED
WHT
WHT
RED
PRP
BLU
FUEL
IGN PWR
BERM MANIFOLD
WHT
RED
TELEMETRICS
POWER
RED
TELEMETRICS PWR
LT TOW UP
LT TOW DN
RT TOW UP
RT TOW DN
GEN ON INPUT
TOPCON POWER
ESTOP OUT
HORN
SCREED POWER
ESTOP IN
LT AUGER POWER
RT AUGER POWER
RT TOPCON SW GND
RT TOPCON SW PWR
LT TOPCON SW GND
LT TOPCON SW PWR
PIN
DESCRIPTION
RT BERM UP
RT BERM DN
LT BERM UP
LT BERM DN
SCREED POWER
HORN
ESTOP IN
ESTOP OUT
BERM DN
BERM UP
AUG PWR
AUG MAN
AUG AUTO
AUG OUT
TOW DN
TOW UP
TOW GND
TOW PWR
TOW TOPCON GND
TOW TOPCON PWR
ITEM
NO
PART
NO
DESCRIPTION
1
2
3
4
LeeBoy 8510E Conveyor Paver 6-3
Schematics
6

Table of Contents

Related product manuals