EasyManua.ls Logo

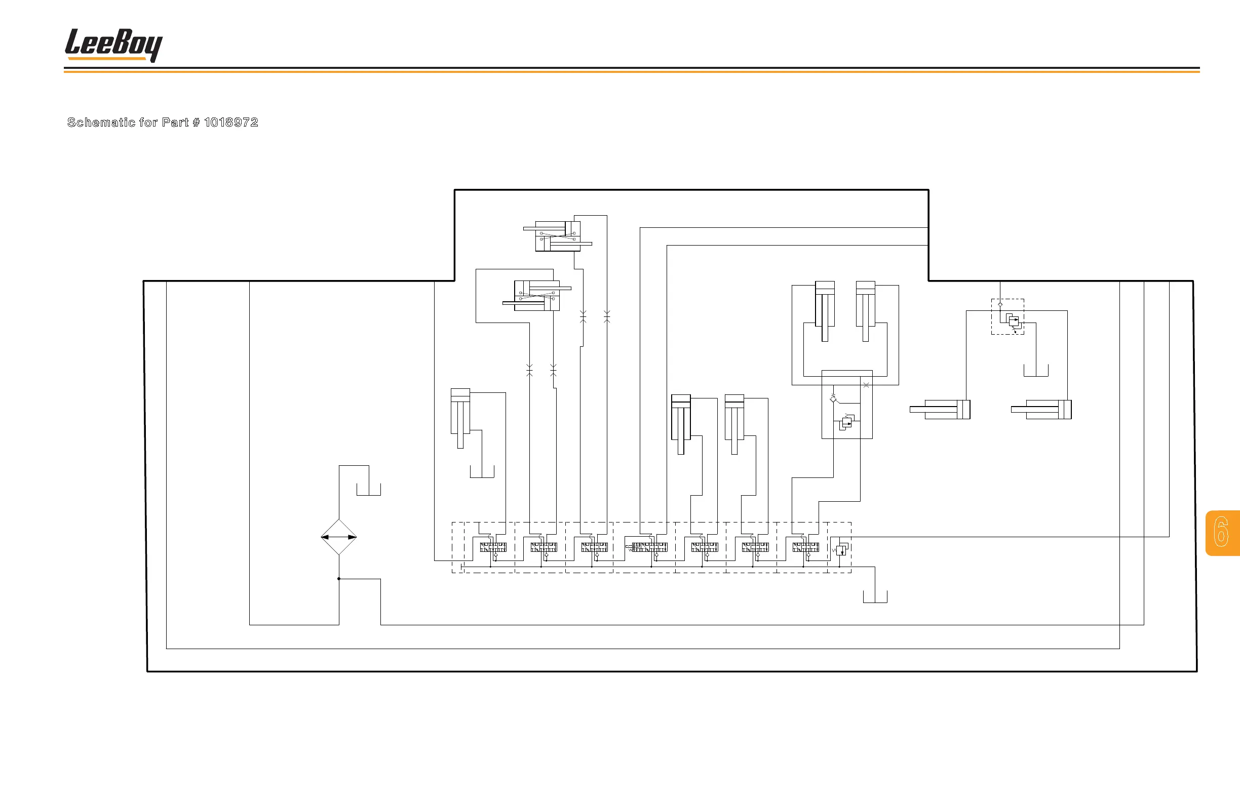
LeeBoy 8510E - Hydraulic Schematic - Propane Heat (4 of 4)

LeeBoy 8510E
444 pages
Print Icon
To Next Page IconTo Next Page
To Next Page IconTo Next Page
To Previous Page IconTo Previous Page
To Previous Page IconTo Previous Page
Loading...
HYDRAULIC SCHEMATIC - PROPANE HEAT (4 OF 4)
Schematic for Part # 1018972
Figure 6-30. Hydraulic Schematic - Propane Heat (4 of 4)
PROPANE
HEAT
FOR HOSE NUMBERING, FIRST # IN SEQUENCE IS FOR LOW DECK. SECOND # IS FOR HIGH DECK.
1500 PSI
I
2200
PSI
COOLER
EXT
RET
811331
-C88#2
RH TRACK TENSION
EXT
RET
811331
-C87#2
LH TRACK TENSION
RET
EXT
981710L
-C89
LH EXTENSION
RET
EXT
981710R
-C90
RH EXTENSION
CRL
CBL
A
B
CBR
CRR
-M71#1
SIDEWING MANIFOLD
910122
.125
EXT
RET
610110
-C92#1
LH SIDEWING
EXT
RET
610110
-C91#1
RH SIDEWING
EXT
RET
910170
-C96#1
RH CUTOFF
EXT
RET
910170
-C95#1
LH CUTOFF
EXT
RET
1016711
-C97#1
CONVEYOR LIFT
B
A
B
A
B
A
B
A
B
A
B
A
B
A
IN
T
CONVEYOR RAISE
LEFT EXTENSION
RIGHT EXTENSION
SCREED LIFT
LEFT CUTOFF
RIGHT CUTOFF
SIDEWING
-M75#1
1017901
OUT
IN
OUT
-C98#1
1016426
11.2 BTU/min°F @ 27 GPM
75
76
12
11
13 10
TL
BL
TR
B
47
21
71
38
62
TOP
BOTTOM
TEE
ADAPTER
BOTTOM TANK
24
BOTTOM TANK
25
TOP TANK
BOTTOM TANK
14A
14B
26
22
27
23
80 82
81 83
CP
A
T
B
-M69#2
TRACK TENSION MANIFOLD
851544
1500 PSI
=A PORT REAR B PORT FRNT
3
LeeBoy 8510E Conveyor Paver 6-61
Schematics
6

Table of Contents

Related product manuals