EasyManua.ls Logo

LeeBoy 8510E - Option - 30-40 Paver Leveling Ski Assembly

LeeBoy 8510E
444 pages
Print Icon
To Next Page IconTo Next Page
To Next Page IconTo Next Page
To Previous Page IconTo Previous Page
To Previous Page IconTo Previous Page
Loading...
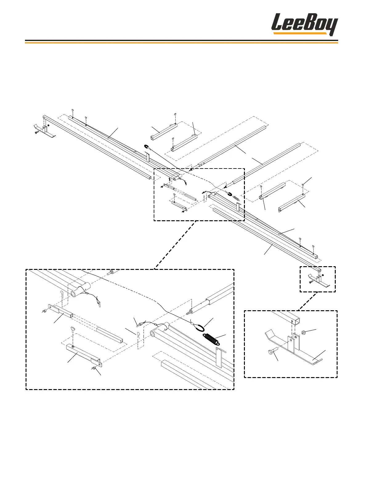
OPTION - 30’-40’ PAVER LEVELING SKI ASSEMBLY
Figure 7-72. Option - 30’ -40’Paver Leveling Ski Assembly
10
9
13
5
11
15
16
19
18
17
21
4
14
6,7,8
2
3
1
12
20
Illustrated Parts List
LeeBoy 8510E Conveyor Paver7-168

Table of Contents

Related product manuals