EasyManua.ls Logo

marposs P3UP - Page 27

marposs P3UP
96 pages
Print Icon
To Next Page IconTo Next Page
To Next Page IconTo Next Page
To Previous Page IconTo Previous Page
To Previous Page IconTo Previous Page
Loading...
Installation and User Manual
27
WARNING
The P3UP panel version must be fitted with a fire-resistant casing. The machine panel itself may
act as this casing, provided it conforms to the specifications required by the standard EN61010-
1 regarding fire-resistant casings.
[
N.B.
If necessary, fixing masks are available for the assembly of the P3UP panel version, even
together with the P3SE.
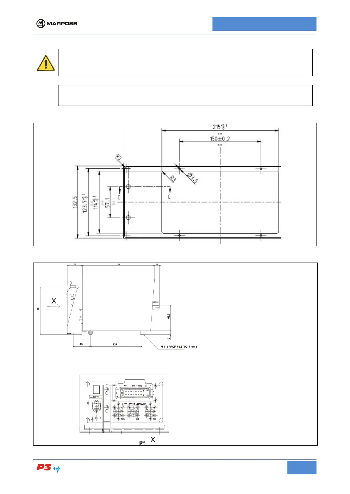
Figure 8: P3UP panel mounted fixing mask, dimensions in mm
Figure 9: External dimensions diagram Bracket version 1/2

Table of Contents

Related product manuals