EasyManua.ls Logo

Medrad Intego - Page 129

Medrad Intego
142 pages
Print Icon
To Next Page IconTo Next Page
To Next Page IconTo Next Page
To Previous Page IconTo Previous Page
To Previous Page IconTo Previous Page
Loading...
119
Appendix D - Vials and Vial Shields
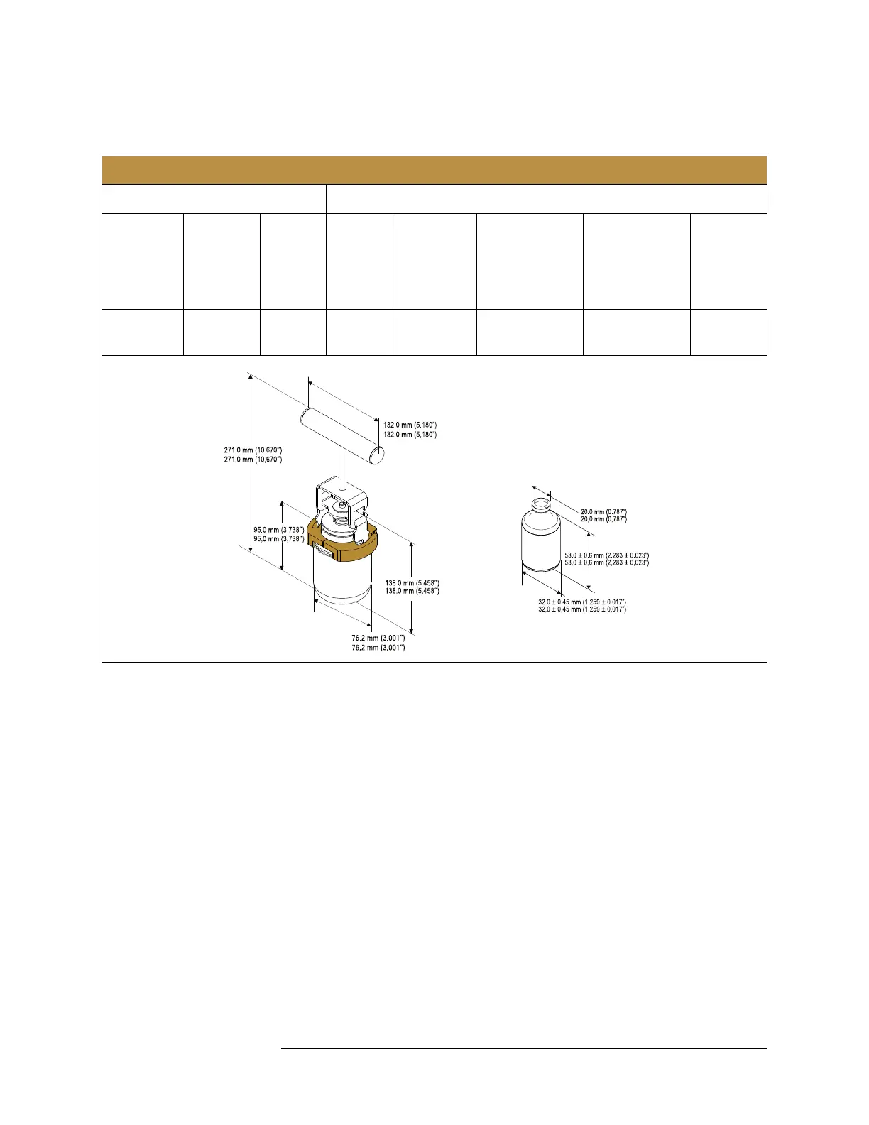
Table 4: Vial Shield and Vial Specifications - Gold
Vial Shield Vial(s)
Medrad Part
Number
Collar
Color
Weight Volume
Range
ISO 8362-
1:2003
ISO 8362-
4:2003 Size
Specification
Body Diameter Glass Height Cap
Diameter
3027139
3038385
Gold
8.6 kg
(18 lbs)
20-25 ml 20H
32 ± 0.45 mm
(1.259 ± 0.017")
58 ± 0.6 mm
(2.283 ± 0.023")
20 mm
(0.787")

Table of Contents

Related product manuals