EasyManua.ls Logo

Medrad Intego - Page 131

Medrad Intego
142 pages
Print Icon
To Next Page IconTo Next Page
To Next Page IconTo Next Page
To Previous Page IconTo Previous Page
To Previous Page IconTo Previous Page
Loading...
121
Appendix D - Vials and Vial Shields
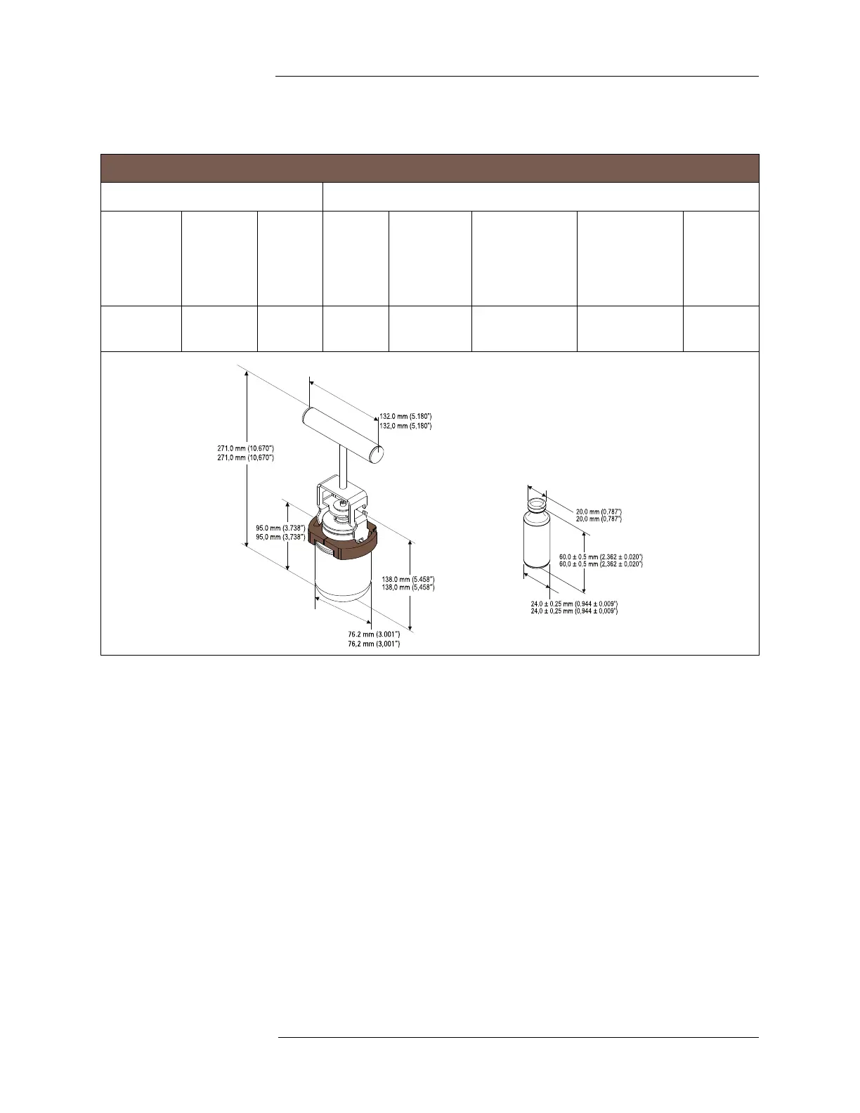
Table 6: Vial Shield and Vial Specifications - Brown
Vial Shield Vial(s)
Medrad Part
Number
Collar
Color
Weight Volume
Range
ISO 8362-
1:2003
ISO 8362-
4:2003 Size
Specification
Body Diameter Glass Height Cap
Diameter
3025940
3038386
Brown
8.6 kg
(18 lbs)
10-15 ml 15R
24 ± 0.25 mm
(0.944 ± 0.009")
60 ± 0.5 mm
(2.362 ± 0.020")
20 mm
(0.787")

Table of Contents

Related product manuals