EasyManua.ls Logo

MICRO-EPSILON ILD1700-2 - Page 99

MICRO-EPSILON ILD1700-2
112 pages
Print Icon
To Next Page IconTo Next Page
To Next Page IconTo Next Page
To Previous Page IconTo Previous Page
To Previous Page IconTo Previous Page
Loading...
Page 99
Instruction for Operating
optoNCDT 1700
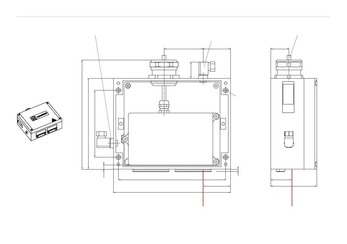
4
(.16)
165 (6.50)
42.5
(1.67)
32.5
(1.28)
60.0 42.0
(1.65)
71 (2.80)
180 (7.09)
6.5
(.26)
103 (4.06)
140 (5.51)
168 (6.61)
25.5 (1.0)
Laser spot Laser spot
4 x
Mounting
holes
ø4.5 (dia. .18)
Air inlet
(Air supply can be pivoted, for
flexible tube with 6 mm inner diameter)
For SGH size M: Exhaust air connector
For SGHF size M: Closed with blind plug
Sensor cable
with connector
28.0
(1.1)
Fig. 52 Protective housing for measuring ranges 40/500/750 mm
SGH/SGHF size M
Dimensions in mm
(inches), not to scale

Table of Contents