EasyManua.ls Logo

MIR MiR100 Hook - Page 106

MIR MiR100 Hook
194 pages
Print Icon
To Next Page IconTo Next Page
To Next Page IconTo Next Page
To Previous Page IconTo Previous Page
To Previous Page IconTo Previous Page
Loading...
9. Commissioning
MiR100 Hook User Guide (en) 10/2020 - v.3.0 ©Copyright 2016-2020: Mobile Industrial Robots A/S. 106
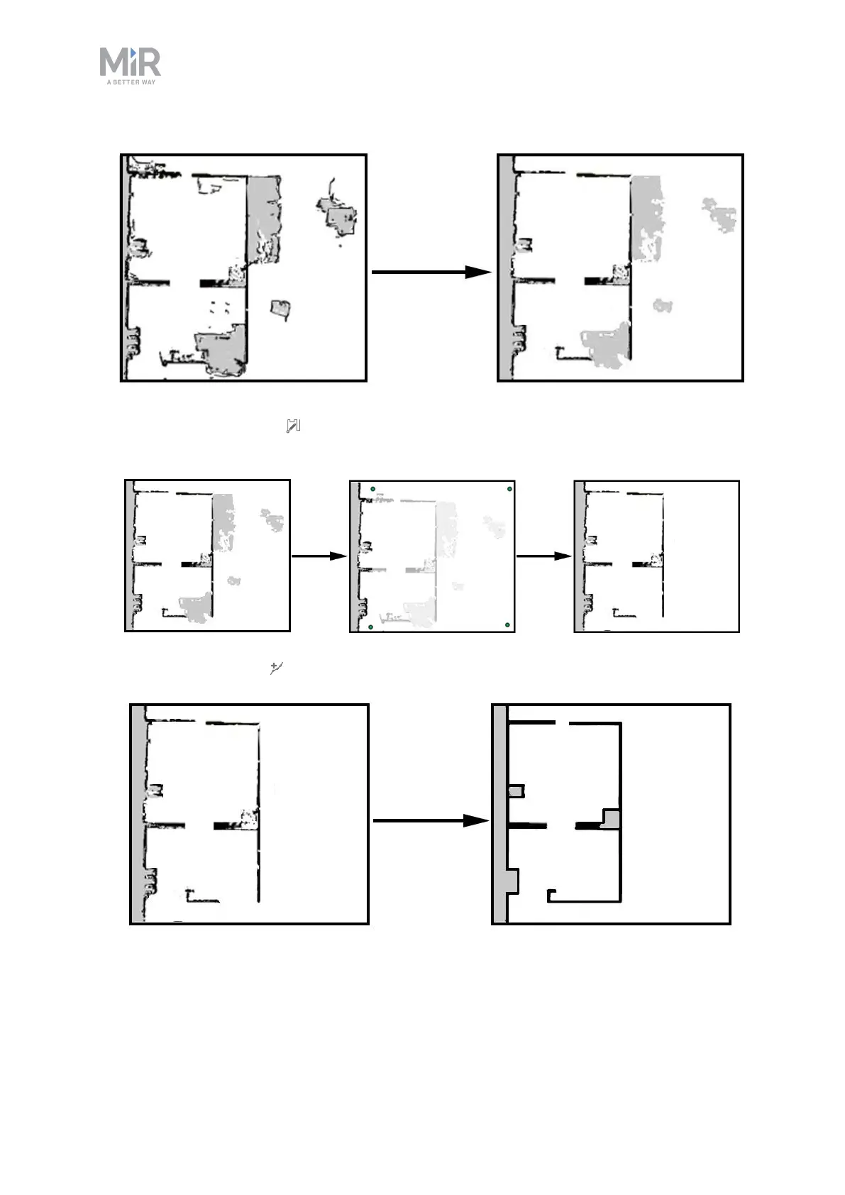
Use Draw a new shape when editing floors to fill out the gray areas where there
should be floor. When using this tool, you do not affect the walls on the map.
Use Draw a new line when editing walls to create solid and even walls.

Table of Contents

Related product manuals