EasyManua.ls Logo

Omron CP1L - Page 47

Omron CP1L
763 pages
Print Icon
To Next Page IconTo Next Page
To Next Page IconTo Next Page
To Previous Page IconTo Previous Page
To Previous Page IconTo Previous Page
Loading...
13
Features and Main Functions Section 1-1
a fixed memory area (DM), messages can be sent or received indepen-
dently of the program by turning software switches.
(2) By using the serial PLC Links, a maximum of 10 words of data per CPU
Unit can be shared independently of the program among a maximum of
nine CPU Units (CP1L-CP1L-CP1H/CJ1M) using RS-422A/485 Option
Boards.
No-battery Operation Programs, the PLC Setup, and other data can be automatically saved to the
CPU Unit's built-in flash memory. Moreover, DM Area data can be saved to
the flash memory and then used as initial data when the power is turned ON.
This allows programs and initial values (such as recipe setup data) in the DM
Area to be saved in the CPU Unit without the need to maintain a backup bat-
tery.
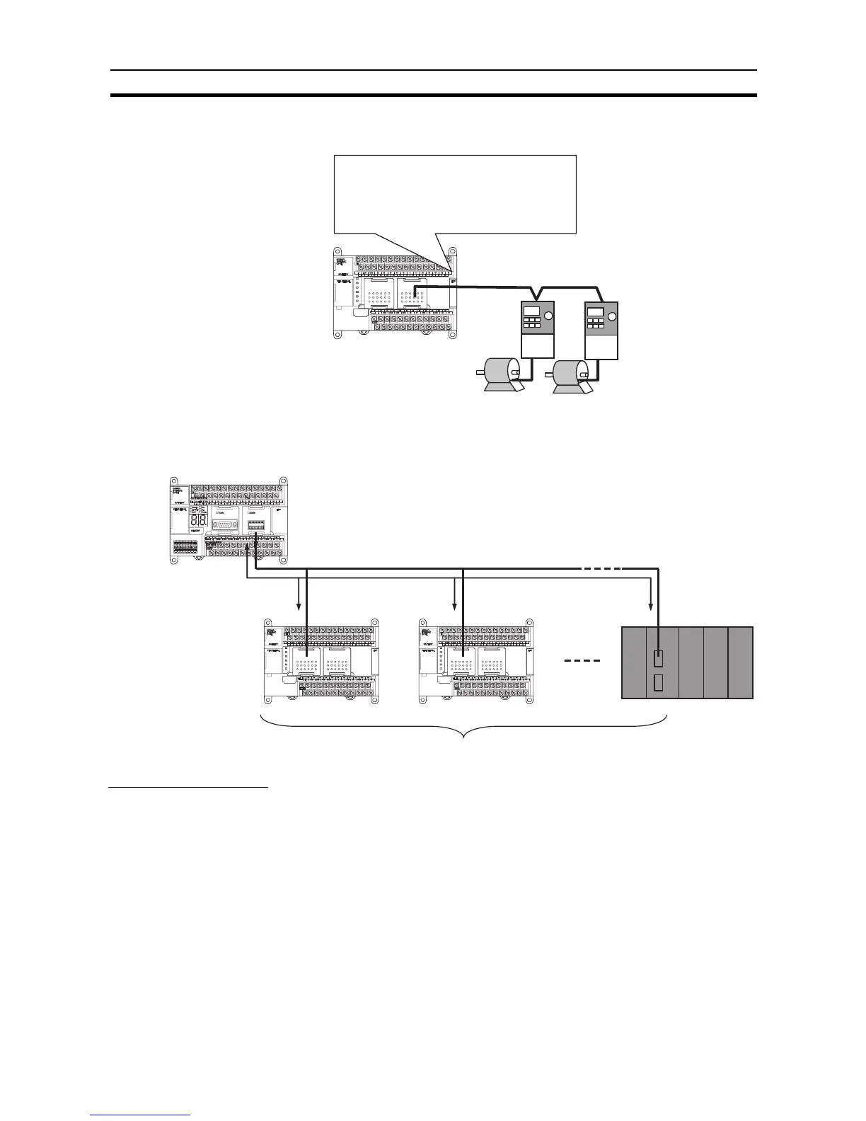
Modbus-RTU
Inverte
r
Communications can be executed
independently of the program by setting
a Modbus-RTU command in the DM and
turning ON a software switch.
RS-422A/485
CP1L CPU Unit
(Master)
Data sharing
CP1L CPU Unit
(Slave)
CP1L CPU Unit
(Slave)
CJ1M CPU Unit
(Slave)
8 CPU Units max.

Table of Contents

Other manuals for Omron CP1L

Related product manuals